Sold2/71 Denbigh Road, Armadale
Denbigh Terrace - Refined Elegance, Metres from High Street
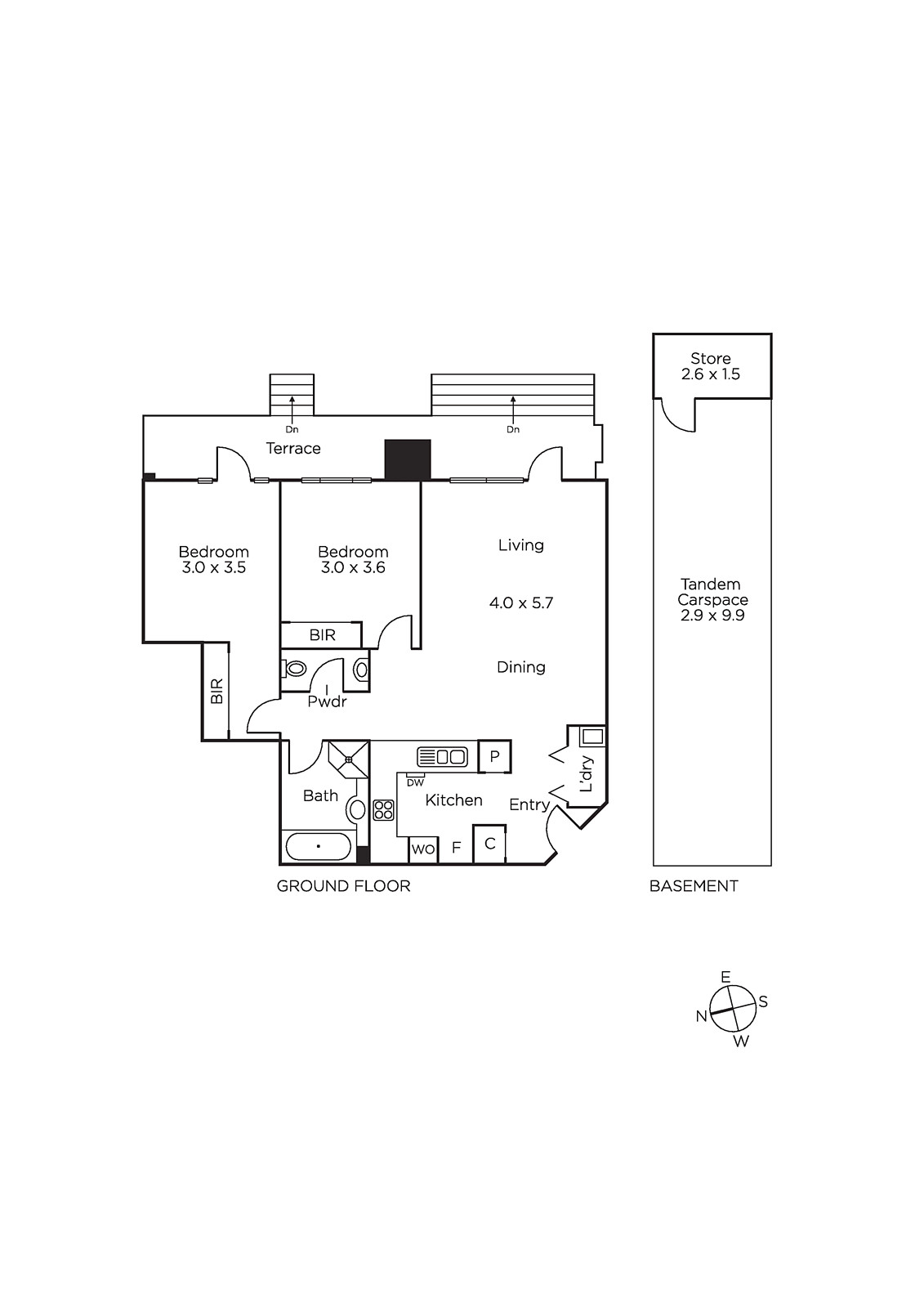
Set within the enormously popular and tightly-held 'Denbigh Terrace' building, just metres from both High St and Armadale Railway Station, this highly refined and elegant, two bedroom apartment promises a lifestyle enriched by a vibrant cafe culture and the easiest of city access. As it evokes a regal sense of grandeur that is perfectly consistent with its premium Armadale position, the home combines wonderful security with an alluring indoor-outdoor connection. Forming a visually cohesive and classically stylish combination, granite bench tops and stainless steel Blanco appliances distinguish an open-plan kitchen / meals / living that flows through double doors to a broad and paved balcony, which itself is shielded by a verdant hedged garden. Each of the bedrooms overlook the balcony and each has built-in robes, while the master bedroom enjoys the luxury of private outdoor access. Fully secure video entry and two basement parking spaces with storage deliver convenience and peace-of-mind in this vibrant location, whilst the home also features split system heating / cooling, a European laundry and elevator access from the basement. Exclusively situated in one of Armadale's favourite, wide and tree-lined streets, this beautifully presented home allows you to relish the opportunity to walk to an impressive selection of fine cafes and restaurants, whilst Armadale Railway Station promises easy city commuting and High St trams are just a few metres away as well.
Enquire about this property
Request Appraisal
Welcome to Armadale 3143
Median House Price
$2,808,333
2 Bedrooms
$1,748,667
3 Bedrooms
$2,338,333
4 Bedrooms
$4,455,834
Armadale, situated just 7 kilometres southeast of Melbourne’s CBD, is a charming suburb celebrated for its sophisticated blend of heritage and modernity, particularly in its real estate offerings.














