Sold2/480 Glenferrie Road, Hawthorn
'Kooyong Heights': Grand, Light-filled Proportions
All Inspections Strictly by Appointment
High on Scotch Hill and immediately announcing itself as a genuinely unique offering, this rock-solid, two or three bedroom apartment reveals older-style proportions of a magnitude that may often be sought, but are rarely actually found. A flawless internal presentation is enhanced by the symphony of space and light that is the provided by huge north-facing windows, a sunny balcony and lush leafy vistas, all in one of eastern Melbourne's most exclusive settings.
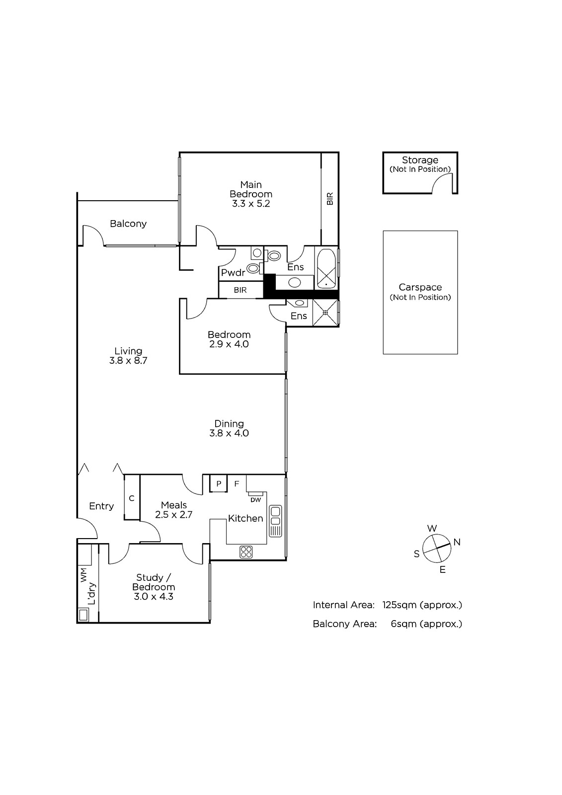
Prepare to be amazed by the home's staggering 125 sq metres of internal size and the volume of natural light in this 'L' shaped lounge and dining that is semi-attached to a kitchen / meals, in which a liberal use of black granite compliments a suite of SMEG and Scholtes appliances. In keeping with the dimensions of the living zones, the bedrooms, too, are capacious - two with built-in robes and ensuites - whilst the vast study could readily be used as another genuine double bedroom. Fully secure with intercom entry, undercover parking, storage and central heating, the home also features a clever European laundry.
Few can match the privilege and prestige of this Scotch Hill setting from which terrific cafes and boutique shopping can accessed on foot, moments also from Glenferrie Rd's renowned restaurant scene and shopping, with public transport to take you in all directions and with tranquil riverside walks nearby as well.
An update from Marshall White on COVID-19: Auctions and Inspections
In accordance with the most recent Federal Government guidelines, public auctions will be cancelled with immediate effect. All of Marshall White's current listings will now be offered via an Expression of Interest or Private Sale campaign. Please contact our agents to make your interest in any of our listed properties is known to us.
Private Inspections are available strictly by appointment only. Please contact our listing agent to make an appointment.
These times are unprecedented, and we are mindful of the community's health concerns and the stresses associated with all property dealings at this time.
Marshall White remains open for business - we have adapted our processes to ensure that we can continue to safely meet your needs. Our commitment to our clients remains unchanged and we continue to deliver outstanding results in helping people achieve their property goals.
We wish you and those close to you the best of health and please contact our office should you have any questions.
Private Inspection Guidelines
To ensure the safety of our clients, the community and our team at Marshall White, we respectfully remind all of our clients of the following arrangements.
We will be asking attendees to:
- Contact the Agent managing the property to book a private inspection.
- Not enter the property if:
* You have returned from overseas in the past two weeks
* You are unwell or have a fever
* You have come into contact with someone experiencing flu-like symptoms
- As per the health guidelines, please maintain a distance of 1.5 metres from others and avoid physical contact, including shaking hands.
- Apply hand sanitiser, which will be available for your use.
- Refrain from touching household items, such as door handles, cupboards and tapware.
- Registration will be required to enter.
Enquire about this property
Request Appraisal
Welcome to Hawthorn 3122
Median House Price
$2,889,167
2 Bedrooms
$1,549,667
3 Bedrooms
$2,061,666
4 Bedrooms
$3,583,333
5 Bedrooms+
$6,541,667
Hawthorn, approximately 6 kilometres east of Melbourne’s CBD, is an affluent and vibrant suburb known for its rich history, beautiful parks, and prestigious educational institutions.













