Sold2/38 Amelia Avenue, Mornington
Boutique Beleura Hill Address
Don't miss this opportunity to make a move to beachside Mornington, with every amenity right at your fingertips! Less than 3 years old with 4 ½ years of builder's warranty remaining this high-quality 3-bedroom townhouse boasts a superb position in a quiet court just 2 minutes to gorgeous Mills beach and Main Street, and footsteps to local schools, transport and the Beleura Hills shops for your morning coffee…what an enviable lifestyle!
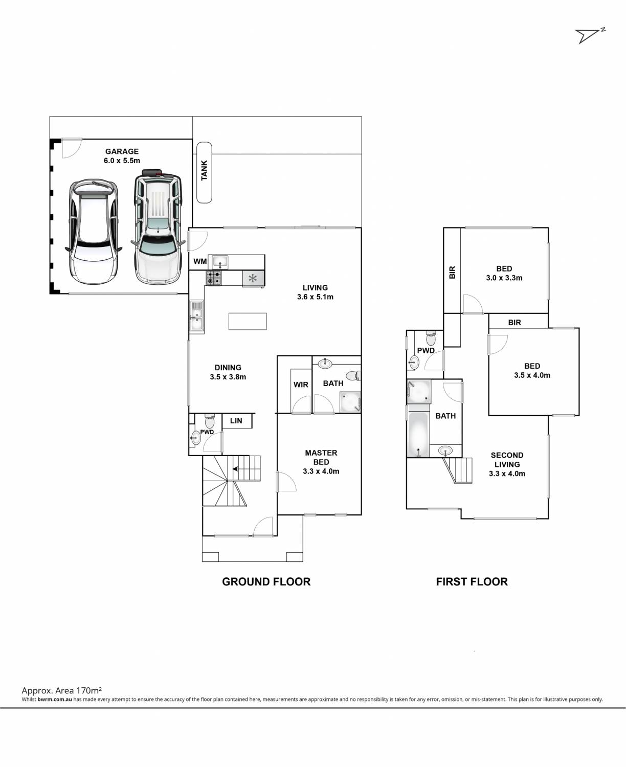
Offering stylish and modern finishes throughout the 2-level floorplan features a comfortable, open-plan living area on the ground floor which caters for some well-deserved relaxing or quality family time, complemented by a secondary living area upstairs perfect as a play area for the kids, study nook or TV den. A fantastic functional kitchen equipped with a suite of S/S Westinghouse appliances and finished in stone adjoins the meals area, while sliding doors provide a seamless transition out to a sheltered, very private deck overlooking the neatly landscaped backyard.
Parents enjoy their own space in a master zoned off the entrance, complete with walk-in robe and ensuite, with 2 generous secondary bedrooms upstairs, both with built-ins and served by a full family bathroom & separate WC.
Some of the many impressive extras include plantation shutters, a handy downstairs powder room, split system air-conditioning in all the bedrooms and living areas, 2 linen presses, wind-out exterior sun blinds, sandpit & veggie boxes, 2000l rainwater tank, garden shed and double garage with automatic door.
In a boutique complex of only 4 with an irresistible seaside address this outstanding townhouse will appeal to a wide range of buyers including young families, professional couples, downsizers and investors. Don't delay, call Joel Hood today to arrange your inspection before it's too late.
Enquire about this property
Request Appraisal
Welcome to Mornington 3931
Median House Price
$1,110,000
2 Bedrooms
$838,750
3 Bedrooms
$925,000
4 Bedrooms
$1,405,000
5 Bedrooms+
$1,897,500
Mornington, a picturesque seaside town located about 57 kilometres southeast of Melbourne's CBD, is a vibrant community known for its beautiful beaches, historic buildings, and lively main street.



















