Sold1A Camperdown Street, Brighton
It's all about stylish family living
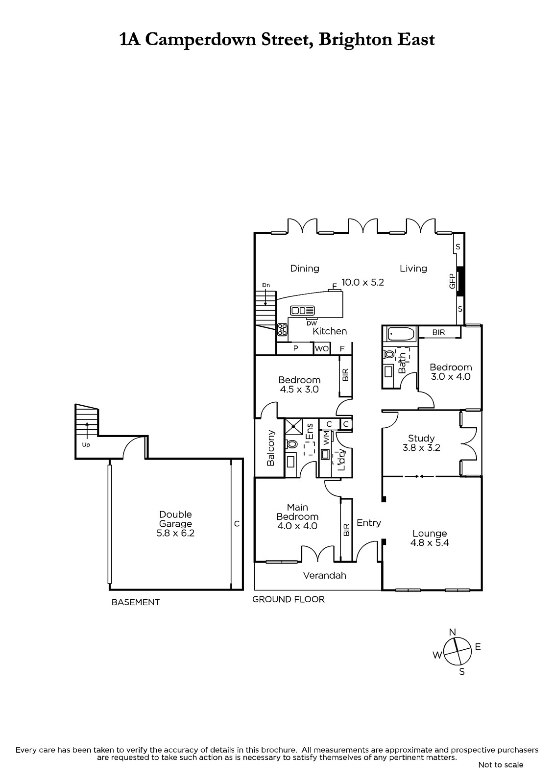
Set in one of Brighton's most serene tree-lined pockets, the 'Orontes' three bedroom residence captures private single level living while delivering luxury family accommodation. Classic style and ample natural light introduce sophisticated oak floor boards, original fireplace and high ceilings, boasting two open plan living areas and light filled home office among leafy garden surrounds.
Substantial family-orientated accommodation is located at the end of a wide hallway, encompassing open plan living and dining area with stone top kitchen benches and stylish all black Gaggenau appliances, overlooking private north facing courtyard through French doors. Bespoke amenities like wine fridge, surround sound and LED lit cabinetry compliment the entertainment domain.
A total of three carpeted bedrooms provide ample storage with built in robes, main bedroom featuring a marble en suite with heated towel racks and lush outlooks. A large central bathroom presents backlit mirrors, sky light and bath, adjacent to a separate laundry. A secure double garage completes the ultimate convenience with internal access, ducted heating, external awnings, outdoor speakers, camera intercom and security system. Located minutes from Dendy Village, Hampton Street shopping, transport and excellent schools.
Enquire about this property
Request Appraisal
Welcome to Brighton 3186
Median House Price
$3,255,000
2 Bedrooms
$1,954,250
3 Bedrooms
$2,487,500
4 Bedrooms
$3,662,500
5 Bedrooms+
$4,714,700
Brighton, located just 11 kilometres southeast of Melbourne CBD, is synonymous with luxury and elegance in the real estate market.


















