Sold194A Esplanade, Brighton
Designer's Own Waterfront Dream
Sold by Ben Vieth - Marshall White
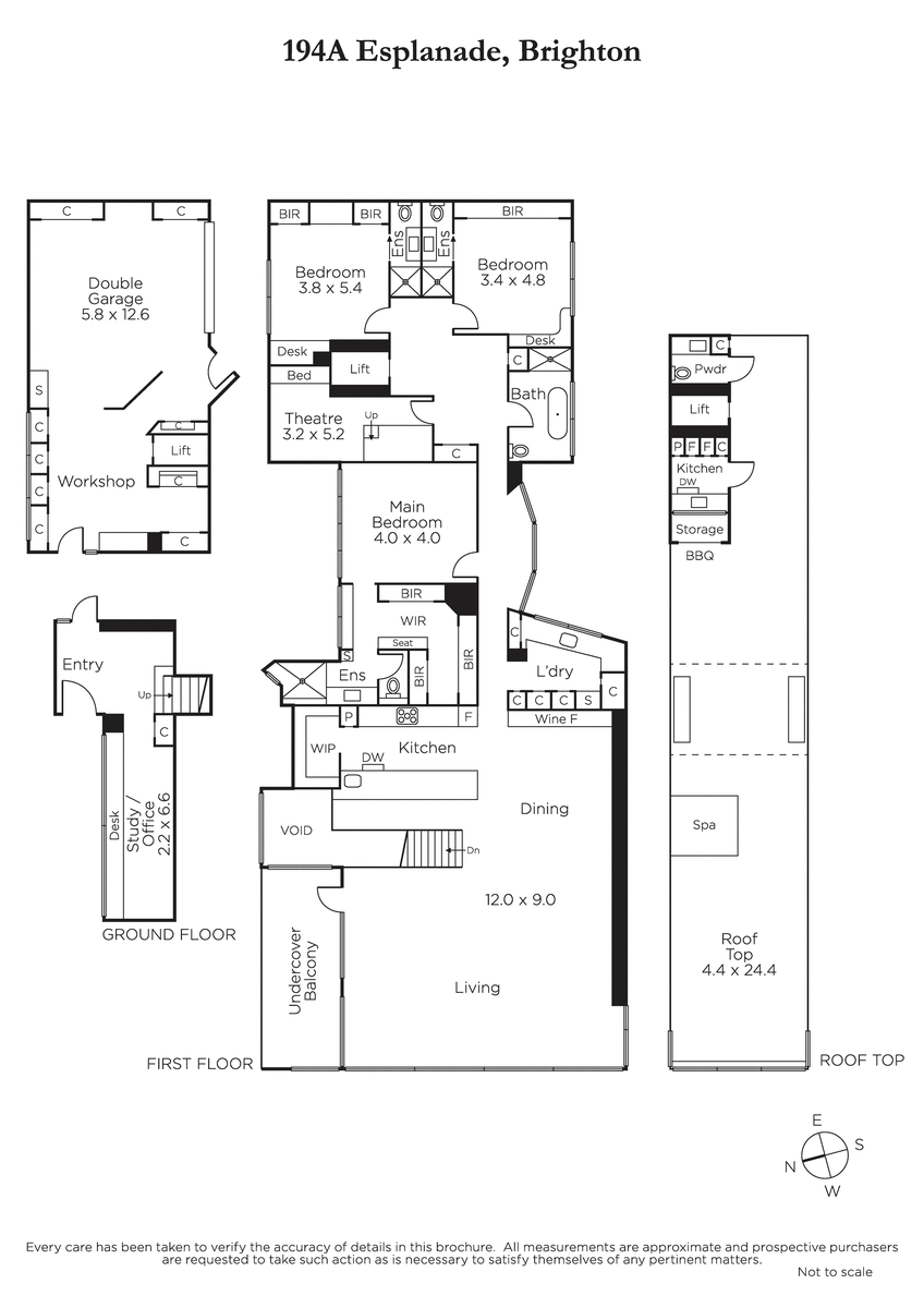
A designer's own masterpiece, directly opposite the sands of Brighton Beach, with endless views across the Bay to Williamstown and up to the CBD, this 4-bedroom plus office residence has been brilliantly crafted to create a genuine sense of occasion. Organised over 3 captivating and elevator-connected levels, the home showcases an inspired use of natural bluestone, sandstone, timber and, of course, light-letting glass as it builds to its crescendo; a rooftop entertainer's paradise.
Organised around a vast, concrete-topped, island bench, the home's kitchen caters to gourmet cooking where a suite of Wolf and Liebherr appliances are complemented by marble bench tops as it overlooks an impressive dining/lounge area. Floor-to-ceiling glass frames a panorama of pristine waterfront privilege and city lights, whilst a balcony is bathed in northerly light.
On the rooftop, entertainers will relish the unforgettable experience delivered by more Bay and city views and where a 5-person spa bath is serviced by a Miele kitchen and a powder room.
Each of the bedrooms is appointed with substantial robe storage and fully tiled designer ensuites, with walk-ins for the master. Meanwhile, a wonderful home theatre can easily be utilised as a fourth bedroom.
Accessed securely via video entry with a double garage and a third driveway parking space, the meticulous attention to detail in this luxurious residence extends to double-glazed windows throughout, automated block-out and sheer blinds, as well as sub-floor heating, central and zoned heating and cooling, plus a climate-controlled wine wall and much more.
Aside from all the benefits of an absolutely pristine waterfront position, this blue-chip location is also within walking distance of Church Street cafe scene, shopping, fine dining and cinemas, as well as Brighton Grammar School and Firbank Girls' Grammar.
Enquire about this property
Request Appraisal
Welcome to Brighton 3186
Median House Price
$3,255,000
2 Bedrooms
$1,954,250
3 Bedrooms
$2,487,500
4 Bedrooms
$3,662,500
5 Bedrooms+
$4,714,700
Brighton, located just 11 kilometres southeast of Melbourne CBD, is synonymous with luxury and elegance in the real estate market.

























