Sold19 Oliver Street, Ashburton
Enduring Charm, Enticing Locale
Beautifully positioned within a deep leafy established garden, this distinguished English style brick residence's impeccably refurbished and intelligently zoned dimensions adapt effortlessly to modern family lifestyles in a prized location walking distance to Ashburton Village, Alamein station, Gardiner's Creek bike path, schools and Watson Park.
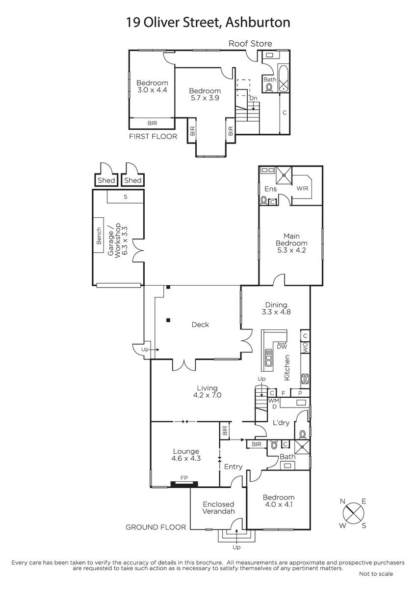
Timber floors flow through the wide entrance hall, light-filled lounge or sitting room with gas fire, a stunning gourmet kitchen boasting stone benches and premium appliances, an inviting dining room and expansive living room. The living spaces open to a large, decked area ideal for al fresco dining and the deep private northeast garden. The main bedroom with walk in robe and chic en suite is in its own wing enjoying garden outlooks. There is a second downstairs bedroom and stylish bathroom while an upstairs children's zone comprises two additional bedrooms with robes and a third bathroom.
Ideal to enjoy immediately, it includes ducted heating, zoned RC/air-conditioning, laundry, 4th toilet, ample storage, garden sheds and garage or workshop.
Enquire about this property
Request Appraisal
Welcome to Ashburton 3147
Median House Price
$1,963,750
3 Bedrooms
$1,600,000
4 Bedrooms
$2,080,000
5 Bedrooms+
$2,600,000
Ashburton, situated about 12 kilometres southeast of Melbourne's CBD, is a suburb that seamlessly merges its historical origins with modern living and a dynamic real estate market.






















