Sold19 Gillman Street, Hawthorn East
Classic Victorian Cottage With Lifestyle Appeal
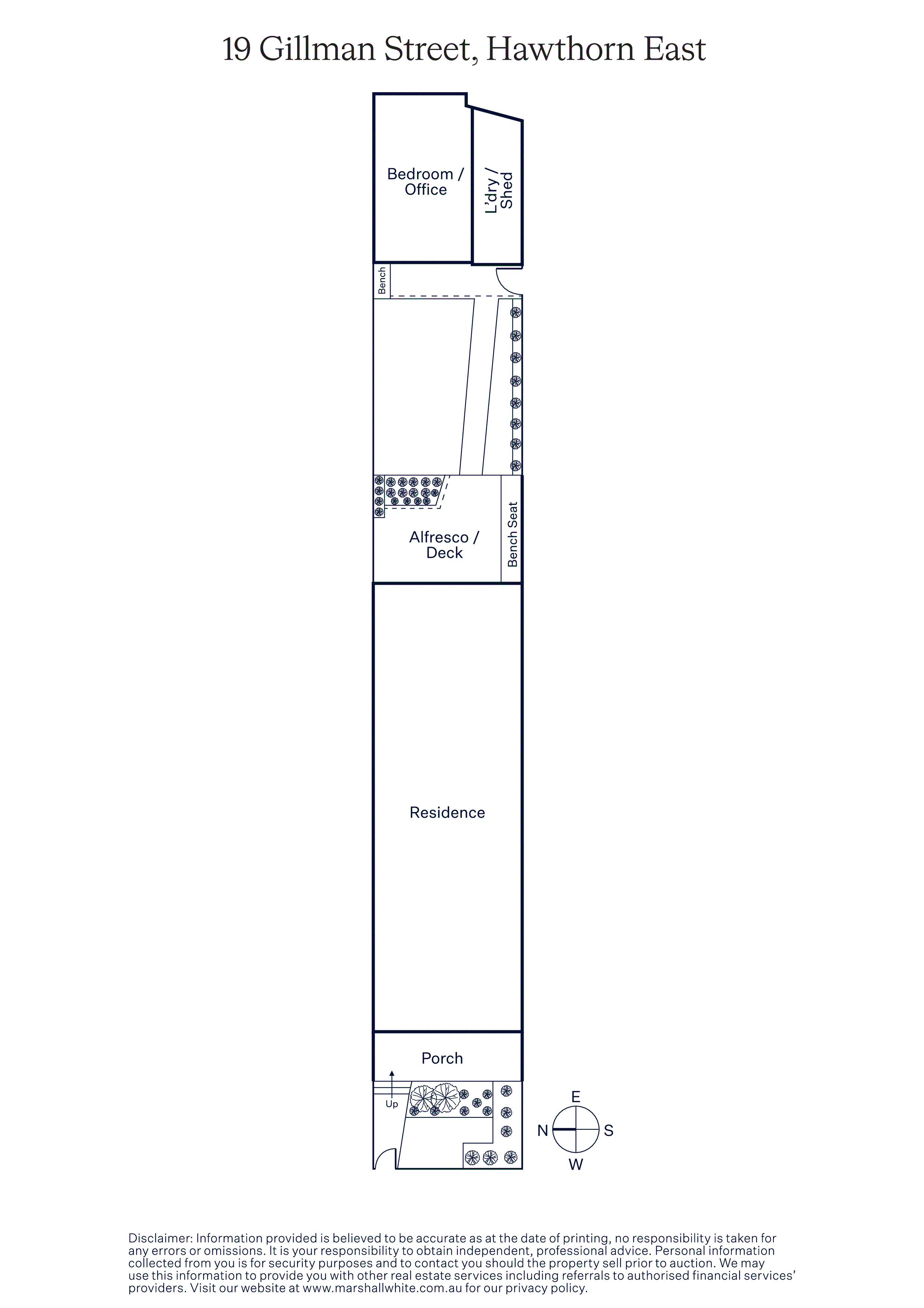
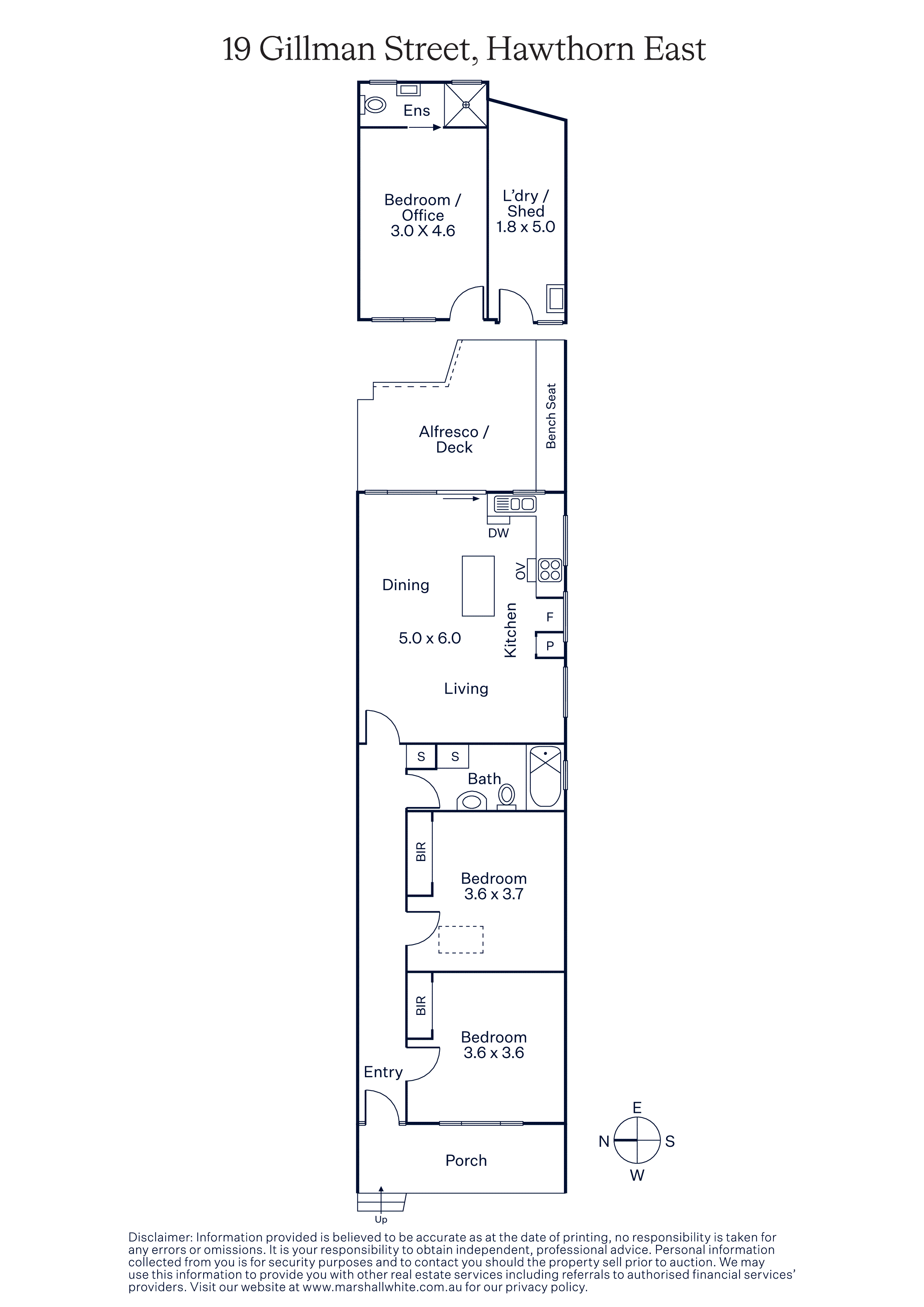
The enduring appeal of a tuck point Hawthorn Brick Victorian cottage is on show here with its classic period attributes including a decorative parapet, iron lacework verandah, ceiling roses and ornate cornices in support. Introduced by a picket fence and neat front garden the welcoming renovated and extended interior features a light and bright fresh white décor. With an arched hallway flowing past two bedrooms with built-in robes and a family bathroom. Through to generous family living area incorporating a well-appointed custom designed scandanavian inspired kitchen with timber bench tops and premium AEG stainless steel appliances; flowing to a deck and low maintenance garden providing ideal indoor/outdoor living and entertaining options for alfresco relaxation; plus a third bedroom, multi-function room or home office with an ensuite. Other features include ducted heating and cooling overhead fan (living), a large storeroom including the laundry and workshop or garden storage; there is also the convenience of side lane access.
This captivating home is enhanced by an ultra-convenient, walk-to everywhere location close to Camberwell Junction shopping and dining, Rivoli Cinema, the eclectic Auburn Village or the Glenferrie Road precinct and public transport options; whilst having easy access to numerous sought-after schools, including Camberwell Primary, Auburn Primary, Fritsch Holzer Park and other parklands all adding to its recreational lifestyle benefits.
Enquire about this property
Request Appraisal
Welcome to Hawthorn East 3123
Median House Price
$2,566,000
2 Bedrooms
$1,558,500
3 Bedrooms
$2,180,000
4 Bedrooms
$2,925,000
5 Bedrooms+
$4,157,500
Situated 7 kilometres east of Melbourne's centre, Hawthorn East offers a coveted mixture of greenery, historic charm, and modern amenities that cater to a wide range of preferences and lifestyles.


















