Sold19 Evans Road, Kew
AUCTION THIS SATURDAY - Sackville Ward- Position Perfect
This superb refurbished two-storey family residence boasts classical elegance complemented by a luxurious sun-filled floor-plan, stylish indoor and generous outdoor entertaining areas and rear garden - delivering brilliant facilities for family relaxation and entertaining in complete privacy. Set in neatly manicured, easy care gardens lined with hedging and ornamental trees it is perfectly positioned in the highly regarded Sackville Ward precinct; one of Boroondara's most prestigious and sought after areas, within walking distance of some of Melbourne's finest schools, parklands, transport and highly regarded shopping options including Camberwell Junction, Cotham/Whitehorse or Glenferrie Roads.
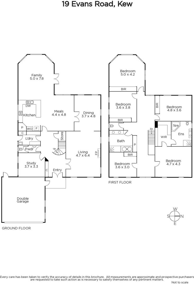
Introduced by a high vine-clad front fence and appealing rendered façade, the impeccably maintained interior features soft neutral tones plus a wide hallway with tiled floors flowing past a study, formal sitting room with gasLFP and adjoining dining room, powder room and laundry. Through to an expansive family living zone with a stylishly updated CaesarStone and Miele kitchen flowing to the paved alfresco terrace plus a smart grass rear garden and cubby house. Whilst a curved staircase leads to five bedrooms, main with WIR and sparkling ensuite, retreat/study area and a pristine family bathroom. Other features include intercom, security system, hydronic heating, ducted vacuum, zoned heating and refrigerated cooling, Plantation Shutters, new carpets, remote gates & double garage.
Land size: 738sqm (approx.)
Enquire about this property
Request Appraisal
Welcome to Kew 3101
Median House Price
$2,666,500
2 Bedrooms
$1,575,000
3 Bedrooms
$2,173,500
4 Bedrooms
$2,926,250
5 Bedrooms+
$4,580,000
Kew, positioned just 5 kilometres east of Melbourne's CBD, is renowned for its sophistication and elegance.















