Sold19 Elgin Avenue, Armadale
"Benefel" - An Exceptional Opportunity Deceased Estate
A splendid example of 1940's Art Deco Nautical style architecture, this iconic double brick residence's pristine originality and generous proportions highlight its outstanding potential for an inspired renovation. Alternatively its superb 655sqm approx. allotment in a coveted cul de sac is the ideal site to build a new luxury home to your own tastes and specifications (STCA).
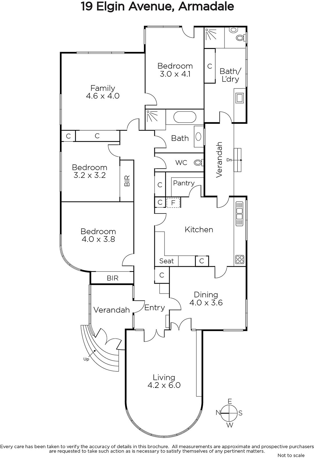
A wide light-filled entrance hall introduces an evocative sitting room boasting a stunning semi-circle bay window and original joinery and lights. The generous dining room is served by a large original kitchen with cellar underneath and the casual dining area leading out to the deep private northeast garden. Parquetry floors feature in two bright double bedrooms and a spacious living room accompanied by a third bedroom and immaculate tiled original bathroom.
A wonderful time capsule offering a rewarding future.
Enquire about this property
Request Appraisal
Welcome to Armadale 3143
Median House Price
$2,808,333
2 Bedrooms
$1,748,667
3 Bedrooms
$2,338,333
4 Bedrooms
$4,455,834
Armadale, situated just 7 kilometres southeast of Melbourne’s CBD, is a charming suburb celebrated for its sophisticated blend of heritage and modernity, particularly in its real estate offerings.











