Sold18 Tower Place, Hawthorn East
UNDER CONTRACT
$2,750,000 - $3,025,000
INSPECTIONS BY APPOINTMENT ONLY
Magnificently occupying a substantial northwest facing garden allotment on the corner of Anderson Road, this illustrious c1930's solid brick English style residence provides a refined foundation for family excellence in a prized location close to elite schools, Anderson Park, Burke Rd trams, Tooronga Village, Camberwell Junction and freeway access.
Ideal for now while also offering scope to further update (no heritage overlay) and extend or alternatively as a new home or multi-residential development site (STCA).
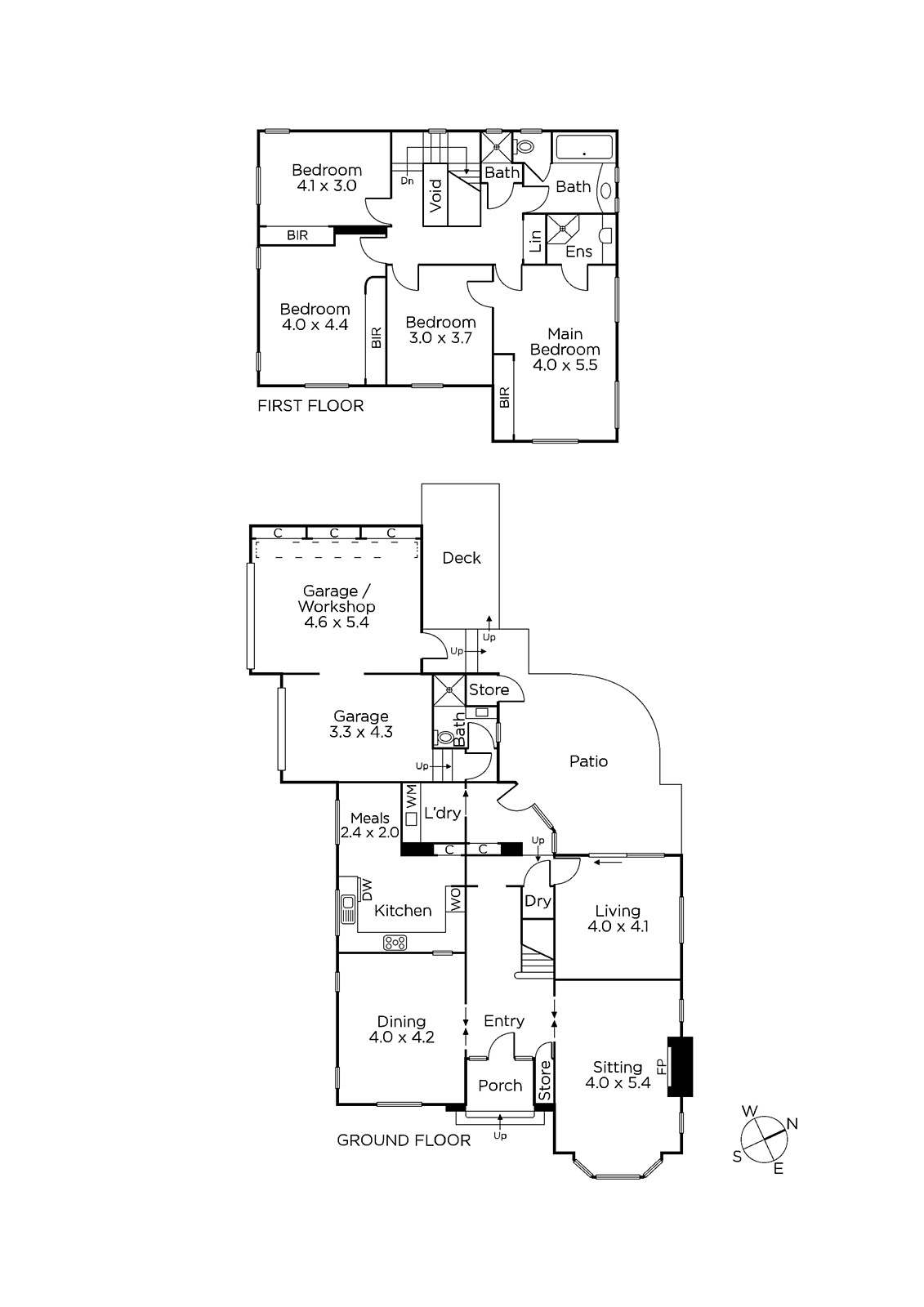
Framed by established gardens, the wide central hall introduces a gracious sitting room with bay window and fireplace and a glorious formal dining room, all featuring ornate ceilings and leadlight windows. The gourmet kitchen appointed with Bosch appliances, Qasair range-hood and stone benches includes a cosy casual dining nook. The light-filled sitting/TV room opens to the entirely private northwest facing garden. Generously proportioned accommodation upstairs comprises the beautiful main bedroom with built in robe and semi-en suite, three double bedrooms, a family bathroom and shower-room. Spectacular city views are enjoyed from the west-facing bedroom. There is a third stylish bathroom on the ground level.
This captivating home includes a laundry, storage room, irrigation and internally accessed double garage with work-shop. 760sqm approx.
Enquire about this property
Request Appraisal
Welcome to Hawthorn East 3123
Median House Price
$2,536,000
2 Bedrooms
$1,537,833
3 Bedrooms
$2,114,166
4 Bedrooms
$2,933,334
5 Bedrooms+
$4,051,667
Situated 7 kilometres east of Melbourne's centre, Hawthorn East offers a coveted mixture of greenery, historic charm, and modern amenities that cater to a wide range of preferences and lifestyles.
















