Sold18 Silver Street, Malvern
The Latest in Luxury and Style
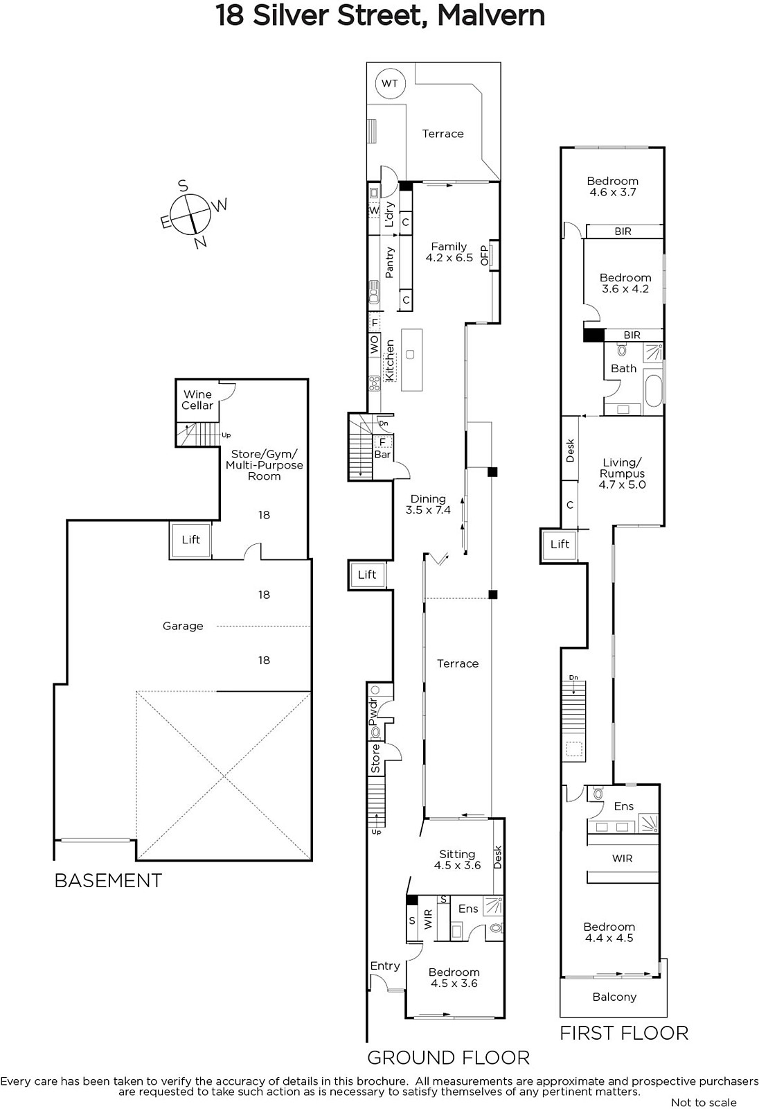
Just completed, the accomplished architectural design of this impressive four bedroom contemporary residence, brilliantly showcases a generosity of scale and a sophisticated sense of style with lift access.
Luxuriously appointed throughout, it more than meets every modern family requirement in a coveted location walking distance to Menzies Reserve, great schools, Malvern Village, Tooronga Station and Village, trams and freeway access.
Floor to ceiling glass, wide oak floors and high ceilings create an instantly appealing ambience as does the intelligent floor plan that is designed around a series of beautifully landscaped courtyards.
The inviting sitting room (or playroom), light-filled dining area with state of the art Miele kitchen boasting stone and marble benches and a butler's pantry all open to the stunning, private central courtyard. The spacious family room with a gas fireplace opens to a second private courtyard with herb garden.
The lavishly proportioned main bedroom with designer en-suite, walk in robe and full width north balcony is set apart from two additional double bedrooms with built in robes, a central bathroom and large rumpus/living with study area.
A guest or 4th bedroom with stylish en-suite and walk in robe extends out to a north-facing, private garden.
On the basement level, a multi purpose room is ideal as a home cinema, recreation room or gym.
Comprehensively appointed with a lift, alarm, heating and cooling, security intercom, powder-room, laundry, irrigation, wine cellar and basement double garage.
Enquire about this property
Request Appraisal
Welcome to Malvern 3144
Median House Price
$2,990,083
2 Bedrooms
$2,106,667
3 Bedrooms
$2,454,667
4 Bedrooms
$3,357,084
5 Bedrooms+
$4,654,999
Malvern, located just 8 kilometres southeast of Melbourne's CBD, epitomises suburban sophistication and elegance.















