Sold18 Jervois Street, St Kilda East
Architect-Designed, Environmentally Conscious
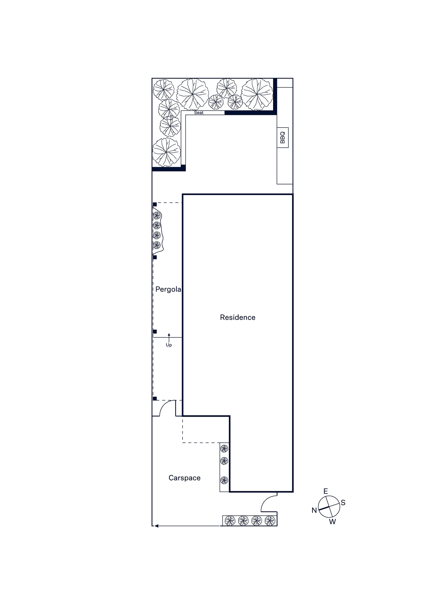
A bold expression of light, style and sustainability by award-winning group DeCampo Architects, this contemporary three-bedroom residence’s versatile and generous proportions expertly merge sophistication with flawless functionality in the heart of St Kilda East. Nestled within a private leafy setting with off-street parking for one beyond an automated gate, it exudes an understated sense of style and idyllic privacy, contrasting its serene ambience against its thriving lifestyle address.
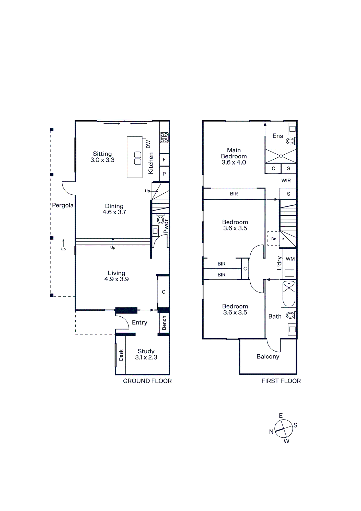
Intelligent design concepts accentuate space within a curated floor plan, revealing a free-flowing interior that can be zoned for quiet work within the fitted study or full-scale entertainment within the sublime open-plan living and dining room. High ceilings, polished concrete flooring and wall-to-wall doors to the rear create the perfect atmosphere for indoor-outdoor living amongst a low-maintenance garden setting, headlined by a sleek, quality-appointed Calcutta marble kitchen and an integrated outdoor mains gas BBQ.
On the upper level, an oversized main bedroom featuring wall-to-wall fitted robes and naturally bright ensuite headlines two additional robed bedrooms, each equally as spacious and accompanied by a central bathroom with a broad balcony. Designed for passive living with a focus on low environmental impacts, the double-brick home also features in-slab electric heating, a 3kw solar system, as well as ceiling fans in every room, intercom access, a cobblestone driveway, a powder room and a substantial amount of storage.
Located in an unbeatable lifestyle position, it is just a few minutes' walk to Alma Park and Carlisle Street’s vibrant retail and dining mecca, and only moments from the area’s best private schools, childcare facilities, Balaclava Station, tram routes and popular cafes.
Enquire about this property
Request Appraisal
Welcome to St Kilda East 3183
Median House Price
$1,720,000
2 Bedrooms
$1,080,000
3 Bedrooms
$1,674,000
4 Bedrooms
$2,100,000
St Kilda West, set between the vibrant streets of St Kilda and the picturesque shores of Port Phillip Bay, offers a unique blend of beachfront allure and urban sophistication.





















