Sold18 Grandview Road, Brighton
The Beauty of a Superb Renovation
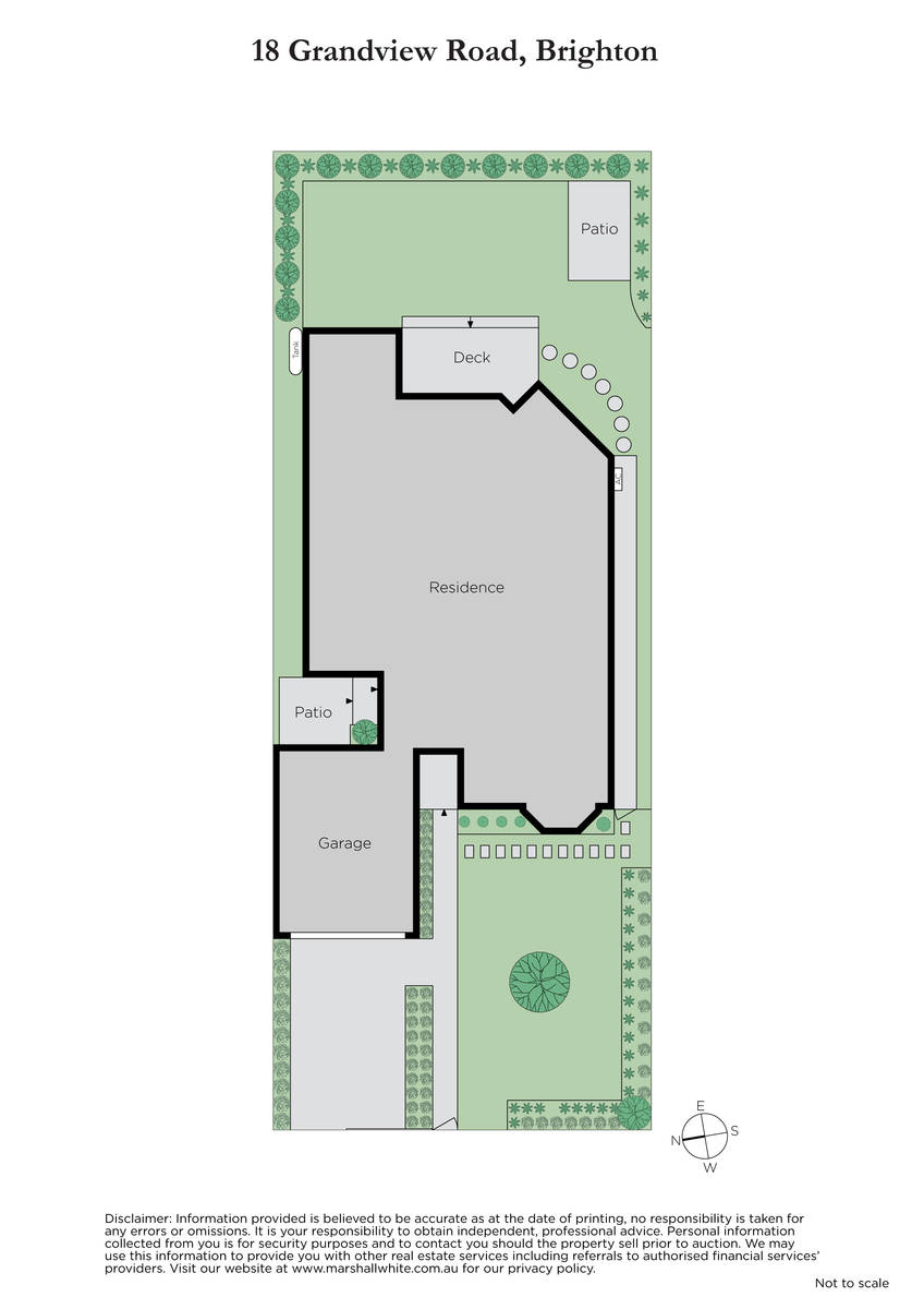
Impeccably renovated five-bedroom home brings contemporary luxe to an idyllic Edwardian, with sophisticated style and quality at its heart. This is a brilliant home for relaxed family living, weekend entertaining on the deck in the easy-care landscaped garden or in the light-filled family room, and the convenience of a lifestyle address moments from Bay Street's cafes, shops, bars, cinemas and North Brighton station. Cherished for its fine pairing of luxe finishes and yesteryear features, the design excels with three living zones over two levels, a streamlined marble and Miele kitchen, and a study/sixth bedroom option. Quality choices add an indulgent vibe in the two ensuites and family bathroom, there's a deep egg-shaped bath for long soaks, and the beauty of oak flooring, an original gloss-brick fireplace in the classic lounge, bay-window leadlight, and high ceilings in every impressive room. Head upstairs and you can look out towards the Dandenong Ranges from the pitched-roof retreat and a spacious bedroom with walk-in wardrobe and ensuite. Practical factors are taken care of with ducted heating and air conditioning, new plantation shutters, blinds and sheer curtains, garden watering system, and a two-car garage. Grandview Road is ultra-central for walking to dinner in Martin Street, it's close to Star of the Sea College and St James Primary School, and minutes from the beach.
Enquire about this property
Request Appraisal
Welcome to Brighton 3186
Median House Price
$3,255,000
2 Bedrooms
$1,954,250
3 Bedrooms
$2,487,500
4 Bedrooms
$3,662,500
5 Bedrooms+
$4,714,700
Brighton, located just 11 kilometres southeast of Melbourne CBD, is synonymous with luxury and elegance in the real estate market.





















