Sold18 Chatsworth Road, Prahran
Executive Excellence in Enticing Location
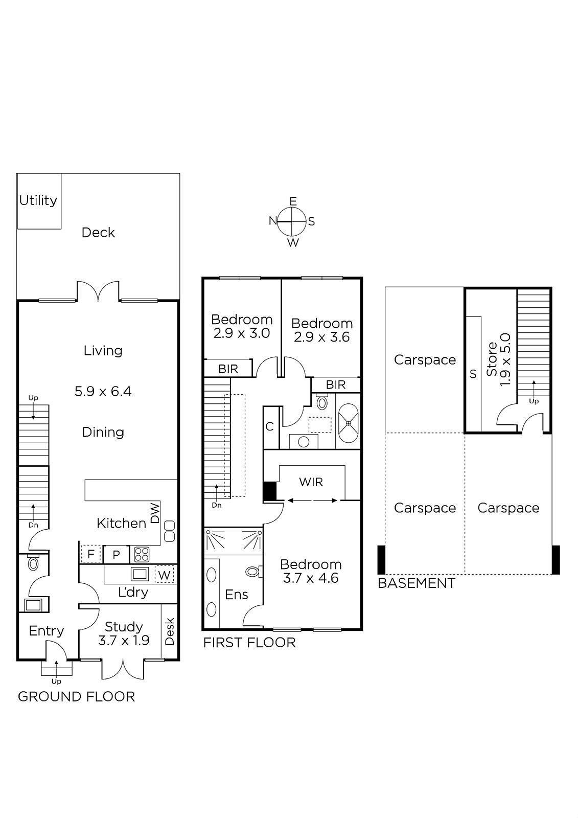
Designed with signature Nicholas Day style and attention to detail, this classically inspired executive residence delivers impressive proportions and timeless elegance in a desirable low maintenance context in a coveted tree-lined pocket walking distance to Hawksburn Village, High St, schools, Orrong Park, trams and Toorak station.
High ceilings and timber floors define the entrance hall, fitted study and expansively proportioned living and dining room with a superbly appointed granite kitchen, opening to a fabulous private decked northeast facing courtyard. Sky-lit stairs lead up to the generous main bedroom with walk in robe and stylish ensuite, two equally spacious bedrooms with built in robes and a bright bathroom.
Impeccably presented throughout, it also includes a powder-room, laundry, remote sun-awning, large store-room or cellar and 3 secure basement car spaces.
Enquire about this property
Request Appraisal
Welcome to Prahran 3181
Median House Price
$1,700,000
2 Bedrooms
$1,380,500
3 Bedrooms
$1,840,000
4 Bedrooms
$2,522,000
Just 5 kilometres southeast of Melbourne's CBD, Prahran is an eclectic suburb known for its fashionable boutiques, thriving cafe culture, and dynamic nightlife.











