Sold18 Argo Street, South Yarra
Sunny, Al fresco Urban Sophistication
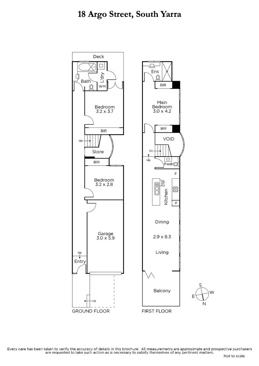
Magnificently modern and dramatically daring, with a harmonious connection to its authentic South Yarra surrounds, this brilliantly designed, three bedroom, executive town house fills with northerly light while revealing terrific urban views. An effortlessly maintained domain of style and sophistication, this is an edgy home that is wonderfully convenient to so many of the cosmopolitan delights of Prahran and South Yarra.
Efficiently crafted with an open-plan upstairs, the home's kitchen / dining / living area eases through concertina doors to a north-facing terrace that draws lashings of natural sunlight. Efficiently, the space opens up to inspire entertainers, while stone benches are attractively durable and a SMEG oven / cooktop will inspire home chefs.
The master bedroom is a terrific indulgence with built-in robes and an ensuite that showcases a huge double-headed shower, plus there are built-in robes in the remaining bedrooms, one of which also enjoys its own private courtyard. Added bonuses in this exclusive home include a lock-up garage that offers the convenience of direct internal access, as well as driveway parking for a second vehicle, a powder room, an alarm, central heating, air conditioning and a split system.
Wander easily to a staggering selection of local cafes and bars, to Prahran Market and all the diversity of Chapel St, plus you have the open spaces of Fawkner Park just around the corner, as well as trams, buses and city-bound trains from Prahran Railway Station.
Enquire about this property
Request Appraisal
Welcome to South Yarra 3141
Median House Price
$2,096,250
2 Bedrooms
$1,440,000
3 Bedrooms
$2,138,750
4 Bedrooms
$3,737,500
South Yarra, an iconic Melbourne suburb, is renowned for its sophisticated charm, merging high-end retail, exquisite dining, and vibrant nightlife with green spaces.




















