Sold17 Selbourne Road, Kew
Period splendour on a grand scale
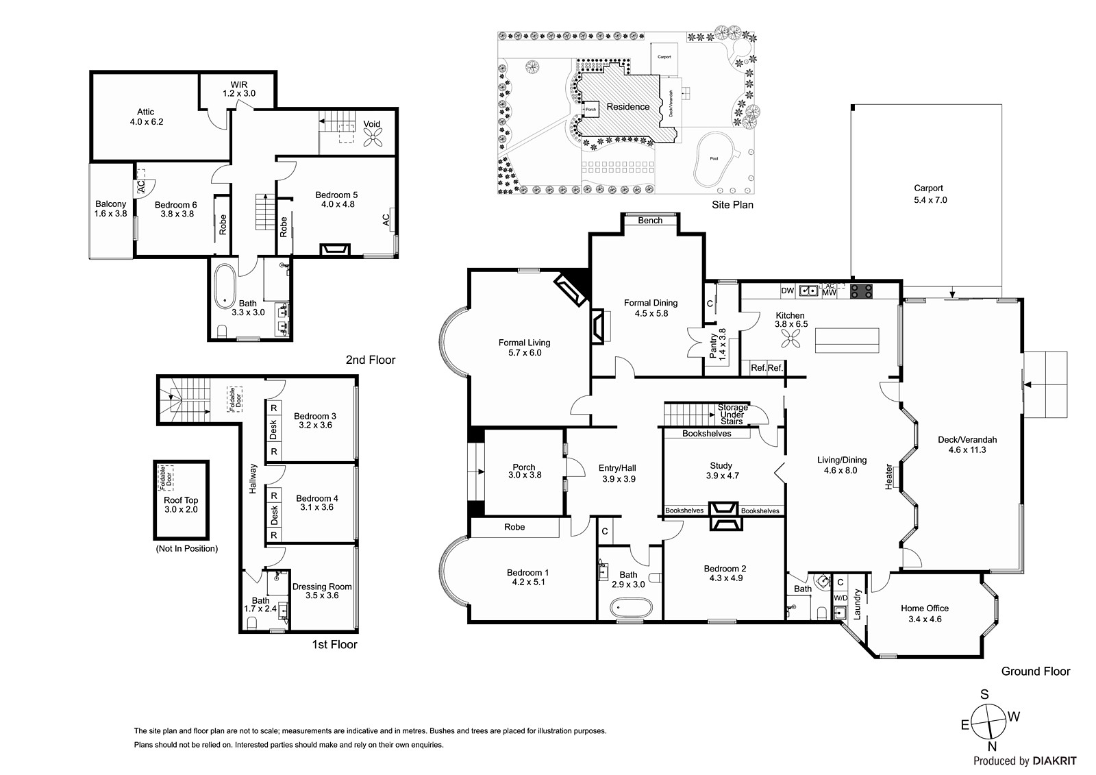
Surrounded by a wealth of Melbourne's most illustrious private schools, "Macedon" is a breathtaking reflection of sublime Edwardian craftsmanship, seamlessly blended with contemporary appointments to create a truly unique and prestigious family residence on a substantial 1,338sqm approx. allotment.
Introduced by a magnificent reception hall adorned with leadlight door panels, soaring 14-foot ceilings crowned with pressed metal, a chandelier, textured wall panelling and tessellated tiles, the splendid period features continue as glossy Baltic Pine floors flow throughout the formal areas of the home, including a stunningly spacious lounge with bay window and fireplace, an equally impressive dining room, regal study and stately front bedroom serviced by an adjacent bathroom with clawfoot bath.
A further five bedrooms (one with private balcony) and two vogue bathrooms are found upstairs, along with access to a rooftop viewing platform revelling in a 360 degree vista incorporating the CBD and surrounds. Moving beyond a sumptuous library with gas log fire, the modern open living/meals space and high-end marble kitchen (with walk-through pantry to the formal dining room) all enjoy a broad view across the full-width, all-weather alfresco zone to a private leafy garden and sparkling heated pool surrounded by decking.
Featuring a fourth bathroom, additional study/sitting room, gas ducted heating, multiple split systems, security system and triple auto-door carport, secure this prized position just an easy stroll to two trams, acclaimed restaurants and boutique Glenferrie Road shopping.
Enquire about this property
Request Appraisal
Welcome to Kew 3101
Median House Price
$2,639,333
2 Bedrooms
$1,671,667
3 Bedrooms
$2,169,667
4 Bedrooms
$2,893,333
5 Bedrooms+
$4,418,333
Kew, positioned just 5 kilometres east of Melbourne's CBD, is renowned for its sophistication and elegance.





















