Sold17 Cheel Street, Armadale
Effortless and Elegant, Moments from High Street
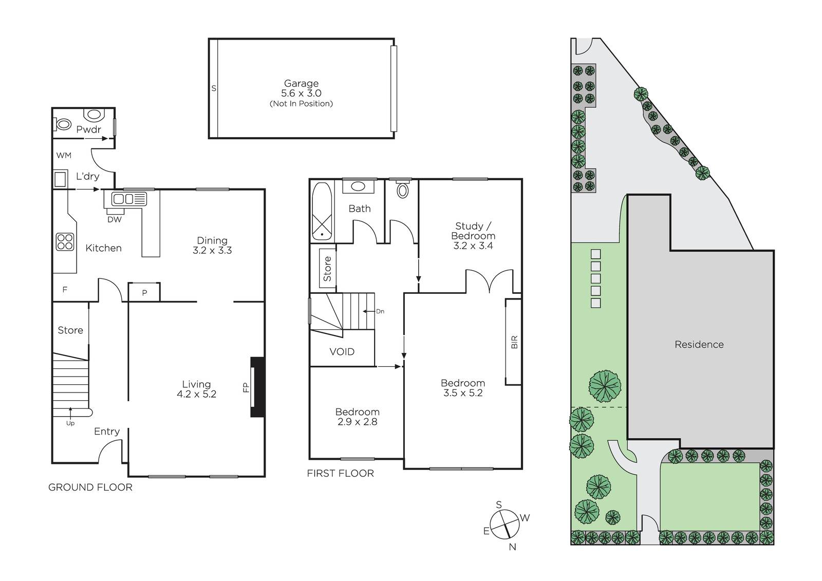
Timeless and light-filled refinement has been tastefully renovated in this absolutely pristine, solid brick, two-to-three bedroom townhouse, exclusively set within walking distance of High Street's cafe scene and Armadale Railway Station. Oriented with a generous northern aspect, surrounded by leafy garden outlooks and yet wonderfully effortless to maintain with the added bonus of a garage on title, the home is ideal for everyone from busy inner-urbanities and young families to astute investors and downsizers who are keen to retain a dynamic Armadale footprint.
Polished timber floors are complemented by a crisp white colour palate, as a gas-heated lounge flows through dining to a contemporary kitchen appointed with stone benches and stainless steel appliances. Upstairs, the bedrooms are private pamper zones - the master with huge, mirrored built-in robes and an ensuite with a double basin vanity - as well as a study / nursery / third bedroom. Added highlights include more robes built-in to the second bedroom, a large, family bathroom, downstairs powder room, a private rear courtyard with additional communal outdoor entertaining, split system heating and air conditioning.
From this blue chip position, you can walk easily to some of Melbourne's most renowned cafes and boutique shopping all along High Street, plus you have effortless city commuting via Armadale Railway Station and High Street trams, as well as plenty of shopping at Malvern Central Shopping Centre and Glenferrie Road.
Enquire about this property
Request Appraisal
Welcome to Armadale 3143
Median House Price
$2,808,333
2 Bedrooms
$1,748,667
3 Bedrooms
$2,338,333
4 Bedrooms
$4,455,834
Armadale, situated just 7 kilometres southeast of Melbourne’s CBD, is a charming suburb celebrated for its sophisticated blend of heritage and modernity, particularly in its real estate offerings.


















