Sold166 Church Street, Brighton
Illustrious Victorian, Idyllic Location
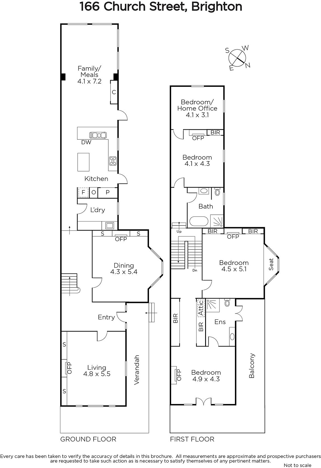
Displaying impressive proportions and elegance, this magnificent solid brick Victorian residence's stunning dimensions brilliantly maximize its wonderful northern orientation to create a radiantly bright, brilliantly zoned and irresistibly appealing family sanctuary just moments from Brighton's restaurants, shops, station, cinemas and a range of schools.
Framed by lush established gardens and a return tessellated verandah, the imposing arched entrance hall featuring limed Baltic pine floors and high ceilings introduces a beautiful sitting room with marble open fire and full length windows and an equally captivating retreat or media room with a black marble fireplace. The sleek, white superbly appointed kitchen and generous living and dining room beneath a glass ceiling open to the deep private north garden with an expansive entertaining terrace and tropical pool. The glorious main bedroom beneath a pressed metal ceiling is appointed with a full width balcony, marble fireplace, walk through robes and chic en-suite. A second double bedroom with pressed metal ceiling, marble fireplace and window seat is complemented by a third bedroom with built in robe and open fire and a study or 4th bedroom.
As featured in Vogue, Belle and numerous other publications, this unforgettable home also includes plantation shutters, alarm, powder-room/laundry, attic storage, work-shop, garage accessed via rear lane and Well St and additional front off street parking.
Enquire about this property
Request Appraisal
Welcome to Brighton 3186
Median House Price
$3,278,333
2 Bedrooms
$2,066,833
3 Bedrooms
$2,509,166
4 Bedrooms
$3,611,666
5 Bedrooms+
$4,742,934
Brighton, located just 11 kilometres southeast of Melbourne CBD, is synonymous with luxury and elegance in the real estate market.














