Sold165 Nelson Road, South Melbourne
Victorian Allure, Designer Style
Framed by a glorious Wisteria covered chequerboard verandah, this beautiful solid brick Victorian residence's absolutely captivating interior spaces are defined by a brilliant blend of period elegance and unforgettable contemporary design. Radiantly light, impressively spacious and perfectly zoned for every stage of family life, it delivers an unbeatable lifestyle just moments from St Vincent Gardens, Albert Park Village, the beach, market, trams and schools.
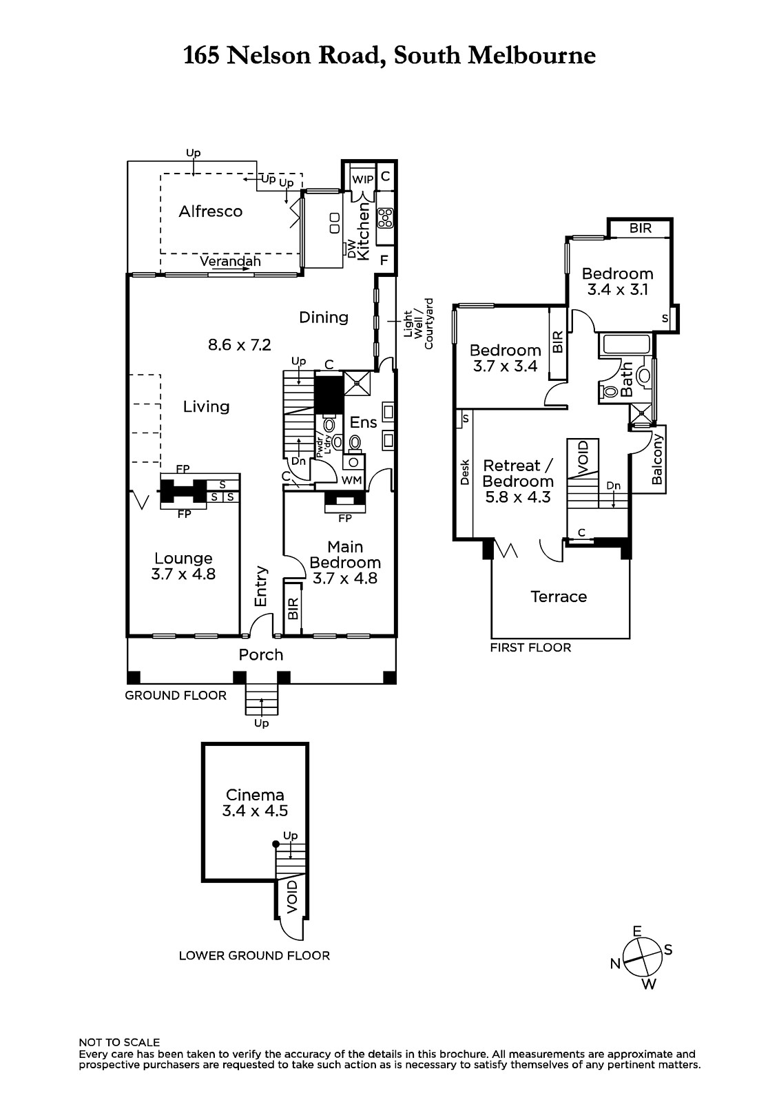
Limed timber floors accentuate the natural light flow in the wide central hall and generous separate lounge with open fireplace. An expansive living room featuring a stacked stone covered gas fire, full length sky light and gorgeous dining area opens to a large deck and private landscaped garden with cute cubby and pedestrian lane. The superb gourmet kitchen boasting Miele and Smeg appliances and stone benches also opens to the deck through bi-fold windows. A stunning downstairs main bedroom with open fire, built in robe and stylish en-suite is matched by a children's zone upstairs comprising two additional bedrooms with built in robes, a designer bathroom and spacious retreat or 4th bedroom with roof terrace. An added surprise is a fabulous basement cinema room. Also appointed with plantation shutters, powder-room/laundry, ample storage and sun-awning.
Enquire about this property
Request Appraisal
Welcome to South Melbourne 3205
Median House Price
$1,700,000
2 Bedrooms
$1,252,500
3 Bedrooms
$1,905,000
4 Bedrooms
$2,767,500
South Melbourne, situated just 2 kilometres from the heart of Melbourne’s CBD, is a vibrant and historic suburb known for its unique blend of cultural heritage, contemporary living, and dynamic community atmosphere.


















