Sold16 King Street, Balwyn
Boundless Possibilities Beside a Reserve
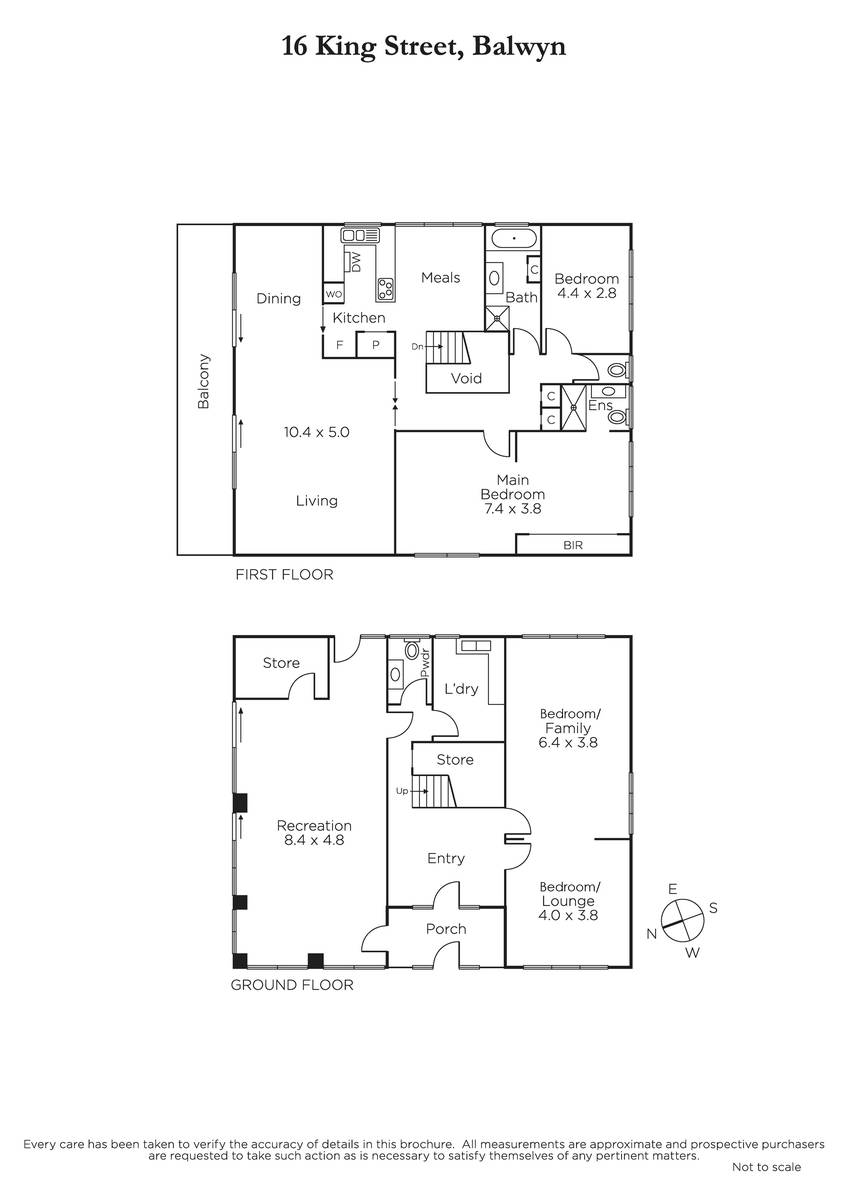
This two-storey brick family home c1980 privately positioned at the rear of the block, offering a quiet and secure lifestyle position embracing parklands behind it. The property also offers future options capitalising on its position; either redeveloping the existing home for the construction of a luxurious new residence. Or alternatively renovators with imagination and vision could use the existing dwelling to reconfigure and update the interior in keeping with today's trends and family lifestyles. Either option will provide excellent capital gains prospects in one of Melbourne's most sought-after residential areas (all options STCA).
With styling reminiscent of the early 1980s the spacious interior has been repainted and fitted with new carpets leaving the suggested updating to finish renovations. The flexible accommodation on the lower levels features a versatile informal living area which could be used as a home office, two bedrooms, a lounge or a bedroom, powder room and recreation or games room with glass walls opening to the northern garden. The upper level overlooks the parklands with leafy vistas of tree canopy and is currently configured to include two bedrooms (with scope for additional bedrooms), including large main with dressing room or retreat and an ensuite, a family bathroom and period-style kitchen/meals flowing to a generous living and dining room plus a large northern balcony. Other features include air conditioner (main bedroom), gas heater (downstairs living), ducted heating (upstairs), overhead fans, storerooms, scope to upgrade garden, gated direct rear access to the Parklands and off-street parking for up to 4 cars.
The property is enhanced by a convenient location moments from Whitehorse/Burke Road transport options, Deepdene Primary and Village shops, cafes, restaurants and the Balwyn Cinema; plus easy access to some of Melbourne's finest schools, including Deepdene Primary and Kew High zoning, plus several nearby parks or the Outer Circle trails for recreation.
Land size: 580sqm (approx.)



















