Sold16-18 Fellows Street, Kew
A Unique Offering with Immense Potential
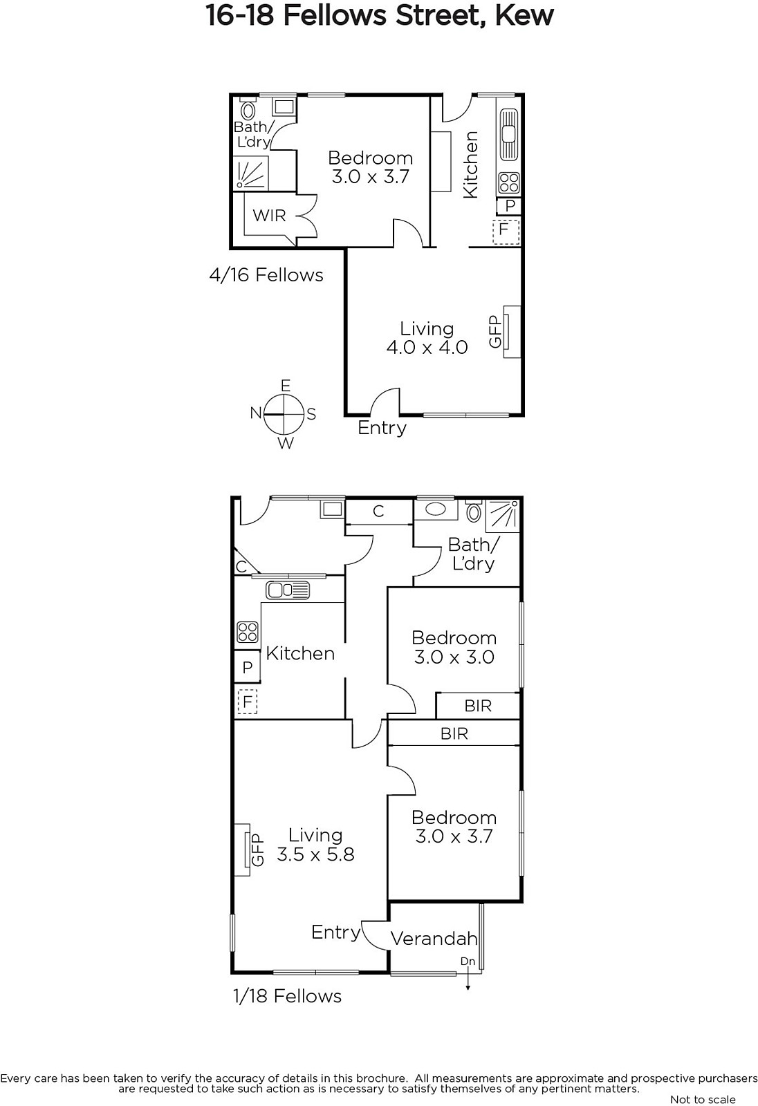
Across two separate titles on a rare and magnificent allotment of approximately 2792sqm and zoned General Residential, 16-18 Fellows Street offers 15 well-maintained villa units for the astute investor or developer (STCA).
Graced by a beautiful tree-lined street and with a highly coveted northern rear orientation, 16 Fellows Street occupies 1800sqm (approx.) while number 18 enjoys 992sqm (approx.). Existing accommodation of the nine one-bedroom units each comprises a spacious zoned living space and well-appointed kitchen, in addition to a generous bedroom complete with ensuite with laundry facilities and walk-in robe. Each of the six two-bedroom units enjoys a substantial living space, two bedrooms with built-in robes, bathroom/laundry and spacious kitchen. Completing the offering, a 3.6m paved laneway is located at the rear of the property allowing direct access to Barry Street.
Eight kilometres from the CBD and positioned in Kew's premier Studley Park locale, this address delivers unparalleled lifestyle opportunities within easy reach of Studley Park, the Yarra Boulevard walking trails and Bell Bird Park, in addition to Victoria Gardens Shopping Centre, Kew Junction shopping precinct and Glenferrie Road. Exceptional schooling is available in close proximity at Xavier College, Methodist Ladies' College, Trinity Grammar School, Ruyton Girls' School, Carey Baptist Grammar and Genazzano FCJ College. Transport links include unmatched access to the Eastern Freeway, an excellent local bus service that runs along Princess Street and the 48 and 109 tram routes.
Enquire about this property
Request Appraisal
Welcome to Kew 3101
Median House Price
$2,676,500
2 Bedrooms
$1,475,000
3 Bedrooms
$2,110,000
4 Bedrooms
$2,870,500
5 Bedrooms+
$4,680,000
Kew, positioned just 5 kilometres east of Melbourne's CBD, is renowned for its sophistication and elegance.











