Sold15 Jennings Street, Sandringham
Architectural Style, Absolute Luxury
Inspections strictly by private appointment only. Please contact the listing agent to schedule a time.
Enviably located only steps from magnificent Half Moon Bay and setting a new standard for sophisticated living, this brand new town residence is the result of Martin Friedrich Architects' renowned vision. Expert craftmanship, luxurious materials and modern aesthetics define this remarkable example of innovative contemporary design.
Intuitively arranged for effortless entertaining, a refined open plan living and dining space incorporates a state of the art kitchen perfectly appointed for any culinary pursuit. The distinguished space is further enhanced by glass doors seamlessly unfolding to a sundrenched alfresco dining area and sparking swimming pool.
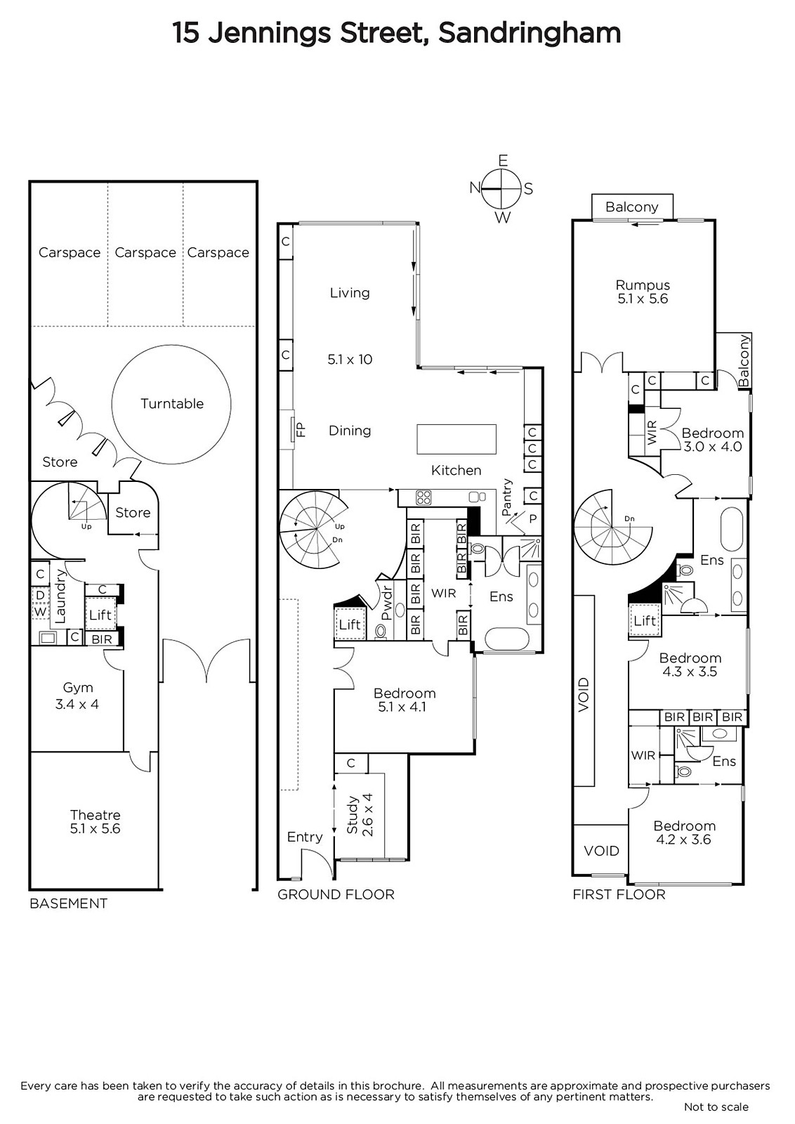
The exceptional accommodation includes two lavish ensuite bedrooms fitted with walk in robes, two additional light filled bedrooms and a spacious bathroom. Delivering an outstanding combination of comfort and opulence, this three storey domain offers a lift, home theatre, private gym and peaceful study as well as the practicality of laundry, powder room and three car garage with turntable.
Prestigiously positioned between lush parks and beach, this address is moments from Sandringham House as well as Black Rock and Sandringham Villages.
Enquire about this property
Request Appraisal
Welcome to Sandringham 3191
Median House Price
$2,002,583
2 Bedrooms
$1,194,334
3 Bedrooms
$1,758,334
4 Bedrooms
$2,391,666
5 Bedrooms+
$2,901,666
Sandringham, a coastal suburb located approximately 16 kilometres southeast of Melbourne's CBD, offers a picturesque blend of beachside charm and urban convenience.















