Sold15 Brixton Rise, Glen Iris
Period Charm Opposite the Park
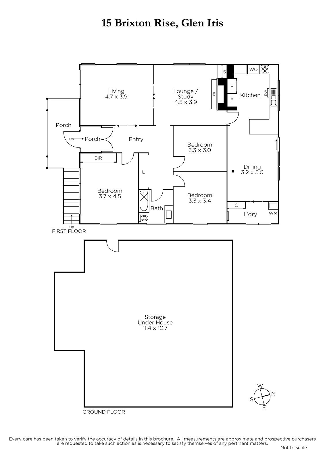
Within a deep north facing garden, this elevated single level period residence with leadlight windows throughout and superbly presented dimensions, offers immediate family living or scope to further update/extend or rebuild in the future (STCA).
Double glass front doors reveal a wide central entrance, light filled living room and spacious adjacent lounge/study with open fireplace. The bright, well appointed kitchen and dining area opens onto the deep north-facing private garden. Three generous bedrooms consist of main with built in robes, two large additional bedrooms, new modern bathroom and separate large laundry. Additional features include off street parking, ample under house storage.
Enjoying close proximity to Glen Iris station, local shops, wide variety of well known schools, parks, bike parks and freeway access. Land size: 555sqm (approx.)
Enquire about this property
Request Appraisal
Welcome to Glen Iris 3146
Median House Price
$2,593,750
2 Bedrooms
$1,528,750
3 Bedrooms
$2,220,250
4 Bedrooms
$2,708,750
5 Bedrooms+
$3,823,500
Glen Iris, situated approximately 10 kilometres southeast of Melbourne's CBD, is a well-established and affluent suburb known for its leafy streets, spacious parks, and prestigious schools.















