Sold143 Cruikshank Street, Port Melbourne
Stunning Family Home
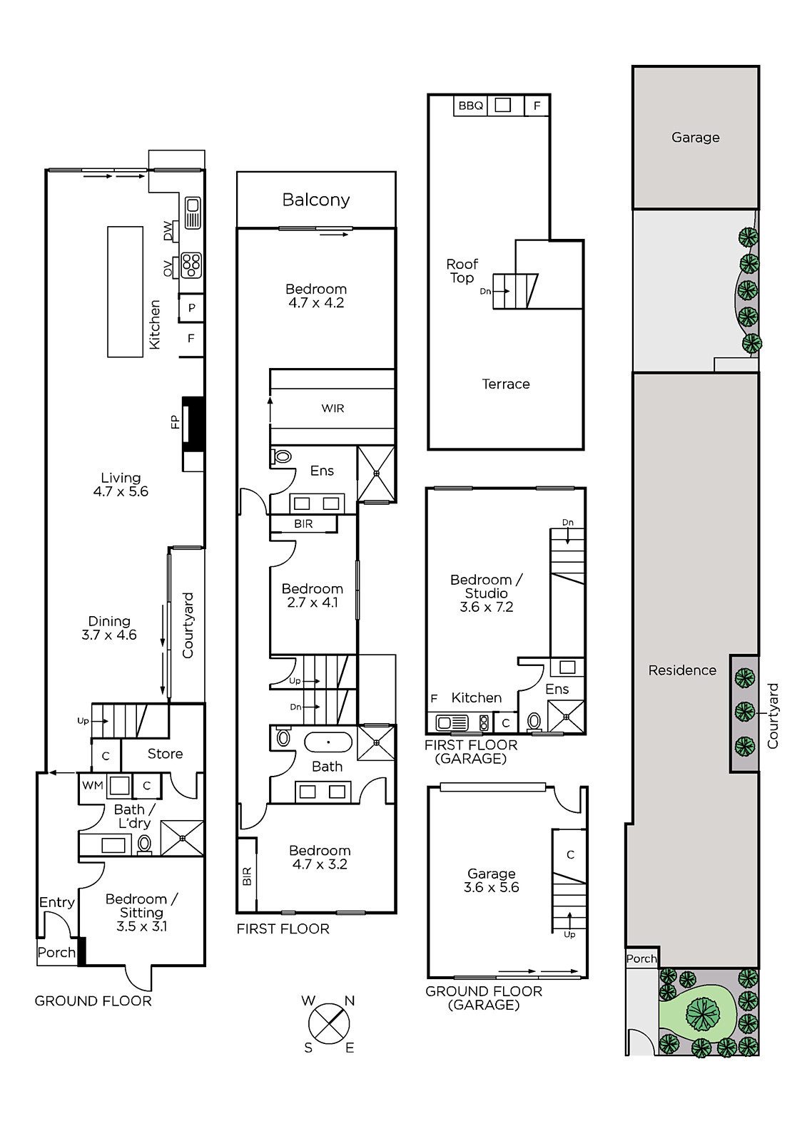
A statement in sophisticated contemporary design and execution, this near-new 4-bedroom, 4-bath residence has been curated to deliver unmatched flexible freedom and remarkable alfresco ease. A compelling city-edge sanctuary between Albert Park and Bay Street, it offers undeniable lifestyle rewards with a secure garage via Cruickshank Place, a separate self-contained office/guest suite and a spectacular rooftop terrace that takes in the breathtaking city skyline.
The home's discreet modern facade creates a lasting impact, continued inside, where soothing tones of polished concrete, timber and crisp white are enriched by a beautiful light-letting design. Privacy from all angles promotes tranquillity with natural light and leafy aspects invited inside through sliding stacked glass within the open-plan living, dining and kitchen domain, complete with a gas fireplace. Sleek stone benchtops, Blum cabinetry and a suite of integrated appliances, including a Miele oven and Falcon range cooker, allow the eye to drift outdoors to the landscaped alfresco zone, enhanced by a gas-pump servery allowing free-flowing entertaining and relaxation.
Three first-floor robed bedrooms and a dual-access family bathroom are headlined by the generous main bedroom, boasting an ensuite, a WIR and city views from its private balcony. A separate self-contained guest suite offers additional accommodation for visitors or older children with independent laneway access above the garage.
Sit front row to the city skyline and entertain in style by the Gasmate BBQ kitchen, and enjoy the benefits of hydronic heating, underfloor heating (ground floor), split system AC, an office/5th bedroom with courtyard access and a first-class security alarm and monitoring system. In a prized location zoned for Albert Park College and within easy walking distance to city-bound trams, South Melbourne Market, St Vincent Gardens and Albert Park Village.























