Sold14 Victor Avenue, Kew
AUCTION THIS SATURDAY
A distinctive brick and rendered facade provides an attractive street presence for this split-level family residence highlighted by a prestigious location in one of Kew's finest leafy pockets minutes from Kew and Balwyn shopping options, parklands and the Outer Circle trails and close proximity to several of Melbourne's sought-after private and public schools including Genazzano, public transport options and quick access to the Eastern Freeway or the CBD.
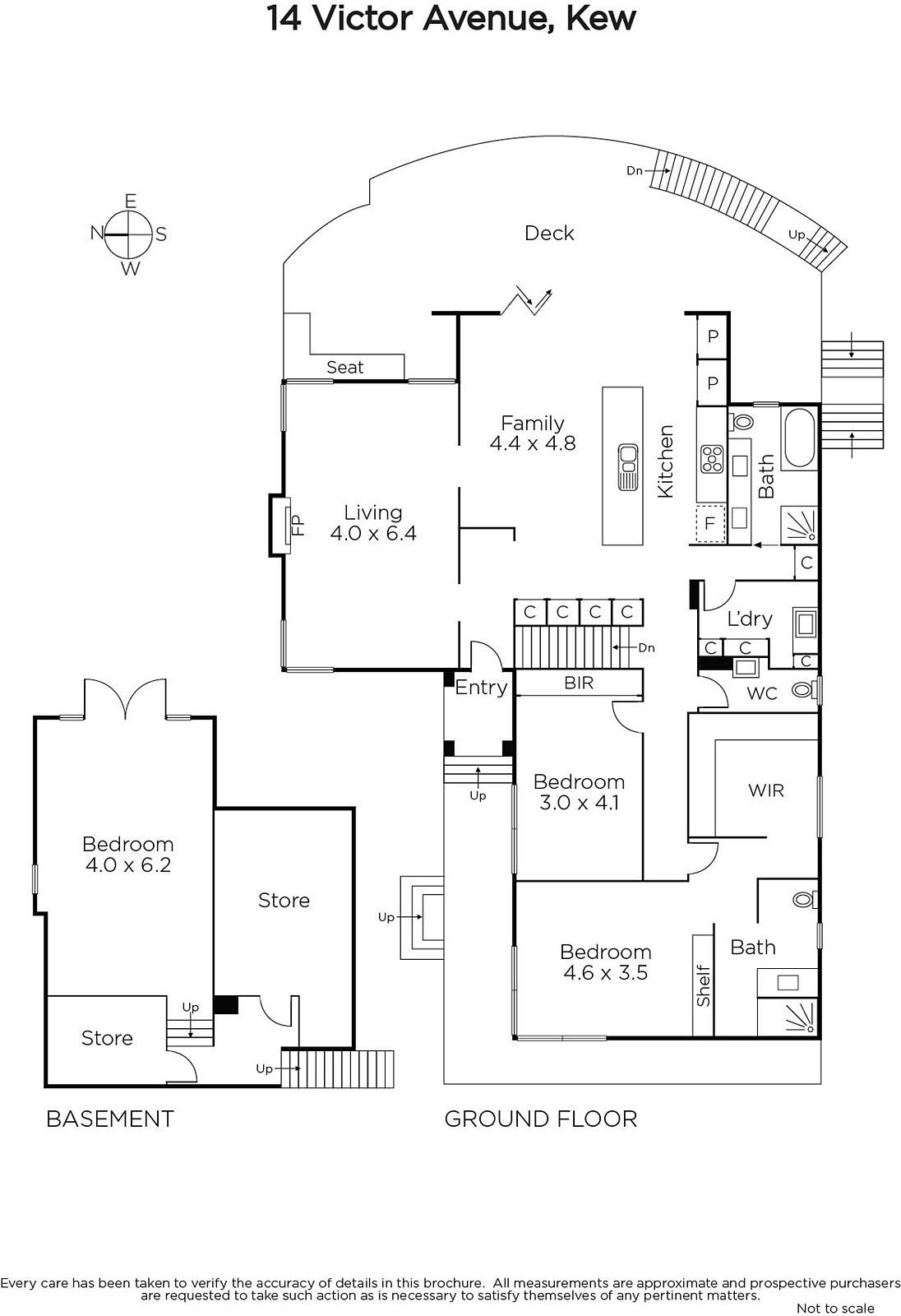
A stylishly renovated interior features an entrance foyer opens to a sitting room with wood fireplace and an excellent family living and entertaining area incorporating superbly appointed CaesarStone kitchen with island bench, Smeg gourmet stainless steel stove, Bosch dishwasher and bi-fold doors opening to a wide deck with covered nook overlooking a leafy garden - ideal for indoor/outdoor dining with family or friends. Complemented by three bedrooms, main with WIR and pristine ensuite, one located on the lower level which could be used as a family retreat if desired; plus a family bathroom, powder room and laundry. Other features include alarm, ducted heating & evaporative cooling, extensive under house and cellar storage plus a double carport.
Land size: 725sqm (approx.)












