Sold14 Loch Street, Kew
Ideal Redevelopment Opportunity with a 18m approx. Frontage!
A great opportunity to redevelop this unrestricted 465sqm approx. allotment of land with a wide 18m frontage (no heritage overlay).
This charming timber period home has been in the family for over 40 years and is original condition and would require extensive renovations.
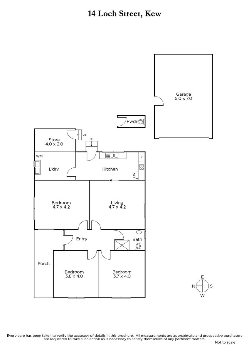
Comprising 3 bedrooms, formal sitting room, bathroom, separate laundry and kitchen that opens on to a good size rear garden. Complete with a large lock up double garage and additional off street parking.
Located only walking distance to Willsmere Village, Kew Junction shopping, fantastic schooling options, public transport and abundance of parkland.
Enquire about this property
Request Appraisal
Welcome to Kew 3101
Median House Price
$2,666,500
2 Bedrooms
$1,575,000
3 Bedrooms
$2,173,500
4 Bedrooms
$2,926,250
5 Bedrooms+
$4,580,000
Kew, positioned just 5 kilometres east of Melbourne's CBD, is renowned for its sophistication and elegance.













