Sold14 Banool Road, Surrey Hills
Period Perfection, Family Excellence
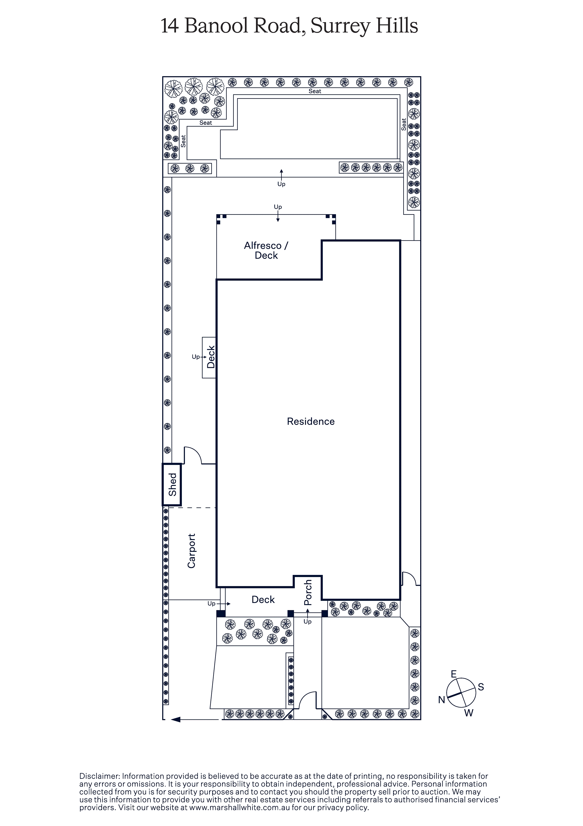
Presenting a picturesque street profile, this captivating single level c1920’s residence’s impressively renovated and cleverly zoned dimensions create an irresistibly appealing family environment beautifully set against a glorious landscaped private garden backdrop.
Double doors reveal a broad central hall and gracious sitting room featuring high ceilings and Baltic pine floors. Northern light streams through the spectacular open plan living and dining room with a premium gourmet kitchen appointed with stone benches, 3 Miele ovens and a butler’s pantry. Ideal for year-round outdoor entertaining and al fresco dining, a sensational undercover deck with heaters and sun blinds overlooks the stunning private northeast garden with extensive bluestone paving. Superbly zoned family accommodation comprises at the front of the home a main bedroom with designer en suite and large walk in robe and a second bedroom with fireplace while in a separate wing there are two additional double bedrooms with robes and a stylish bathroom.
Enviably situated close to Union train station, Whitehorse Rd trams, Union Rd shops and restaurants, Maling Rd, Chatham Primary and other prestigious schools, it includes; Telsa Battery with Solar Panels, CCTV security system and alarm, video intercom, ducted heating/cooling, remote blinds, powder-room, laundry, remote sun-awning, storeroom and carport.
Enquire about this property
Request Appraisal
Welcome to Surrey Hills 3127
Median House Price
$2,282,500
2 Bedrooms
$1,305,000
3 Bedrooms
$1,920,000
4 Bedrooms
$2,340,000
5 Bedrooms+
$2,950,000
Surrey Hills, a prestigious suburb located approximately 11 kilometres east of Melbourne’s CBD, epitomises gracious living with its leafy streets, heritage homes, and a strong sense of community.

















