Sold135 North Road, Brighton
Glorious Grandeur; Esteemed Locale
Sold by Ben Vieth - Marshall White
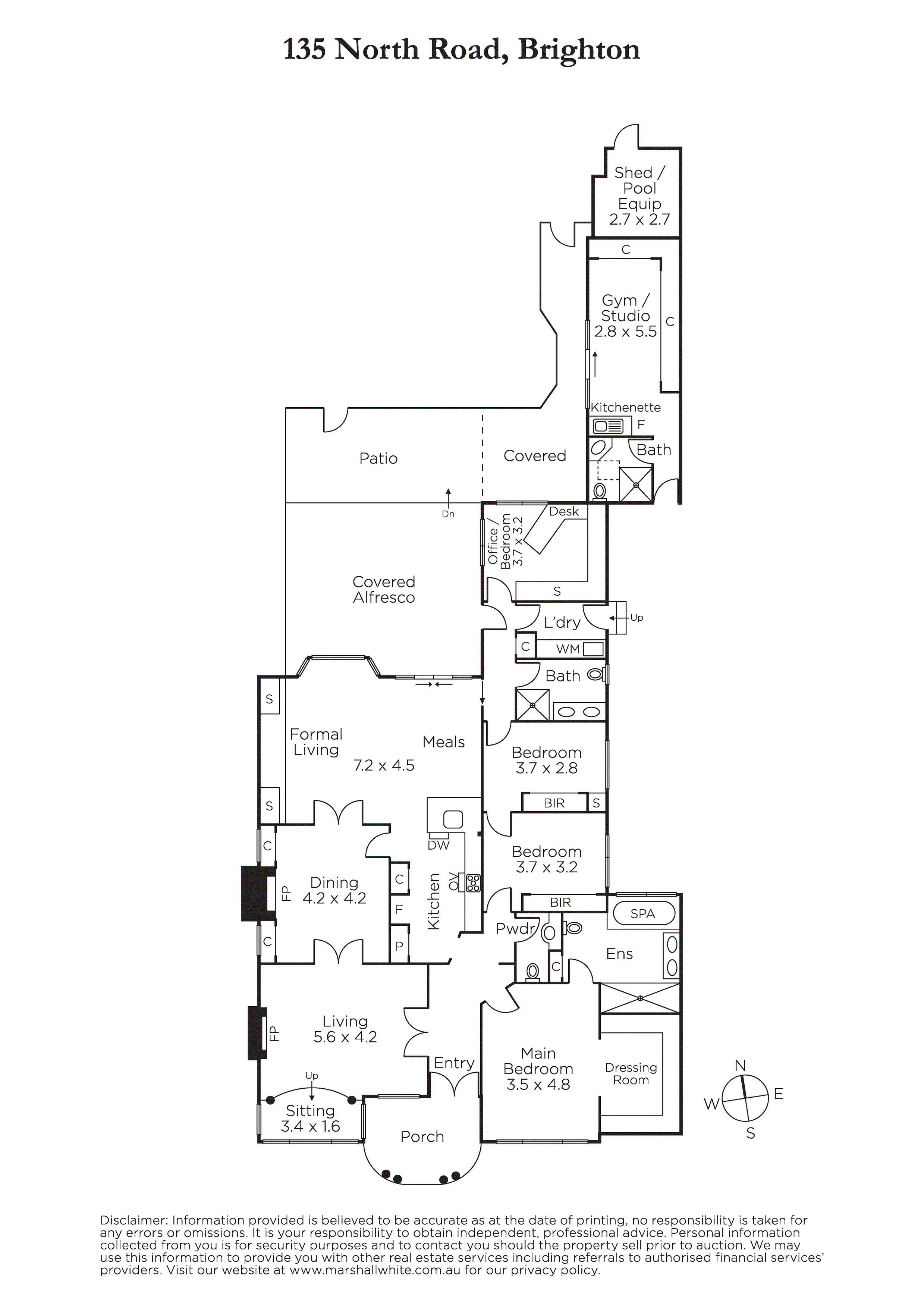
Epitomising the luxury, glamour, and exuberance of the Art Deco movement, this stunningly beautiful and meticulously maintained circa-1925 Brighton residence retains all the grandeur of its glory days, complemented by modern living enhancements including a gourmet kitchen, luxe master suite, and north-facing alfresco zone with in-ground swimming pool and multi-purpose room.
Set well back from the road, and privately cocooned in a lush garden setting behind automated gates with intercom entry, the single-level solid-brick rendered residence is distinguished by its grand façade adorned with fluted columns and a roofline parapet. The bespoke beauty continues inside with marble and parquetry flooring, intricate ceiling mouldings, decorative archways, and an embellished plasterwork frieze in the formal lounge with embedded corner sconce lighting. Set in original, ornate surrounds, the home’s fireplaces have been installed with gas log fire heaters, while a brand new electric ducted heating and cooling system has recently been installed. Also renovated is the central stone kitchen with Ilve oven and gas cooktop, which connects to the family/casual dining area with glass sliding doors that open to the north-facing undercover poolside alfresco entertaining zone. Surrounded by slate tiling, the large, lagoon-like swimming pool has recently been fitted with new pumps, and the self-contained cabana could be ideal for teenager or guest accommodation.
With front garden outlooks, the spacious main bedroom suite has a walk-in robe and luxe floor-to-ceiling tiled ensuite with spa bath, twin stone vanity and a walk-in shower. There are another two bedrooms, both with built-in robes, and a fitted study (or fourth bedroom) with poolside views. In addition, there is the family bathroom with walk-in shower and twin vanity, powder room, laundry with external access and a secure double carport.
Outstandingly located, this esteemed North Road address is just a short walk to Martin Street and Bay Street shops and Gardenvale and North Brighton stations, the foreshore and Bay Trail. Leading schools, including Firbank Grammar, Brighton Grammar and Star of the Sea are also close by.
Enquire about this property
Request Appraisal
Welcome to Brighton 3186
Median House Price
$3,278,333
2 Bedrooms
$2,066,833
3 Bedrooms
$2,509,166
4 Bedrooms
$3,611,666
5 Bedrooms+
$4,742,934
Brighton, located just 11 kilometres southeast of Melbourne CBD, is synonymous with luxury and elegance in the real estate market.

























