Sold13 Toorak Avenue, Toorak
Exclusivity, Elegance and Exciting Possibilities
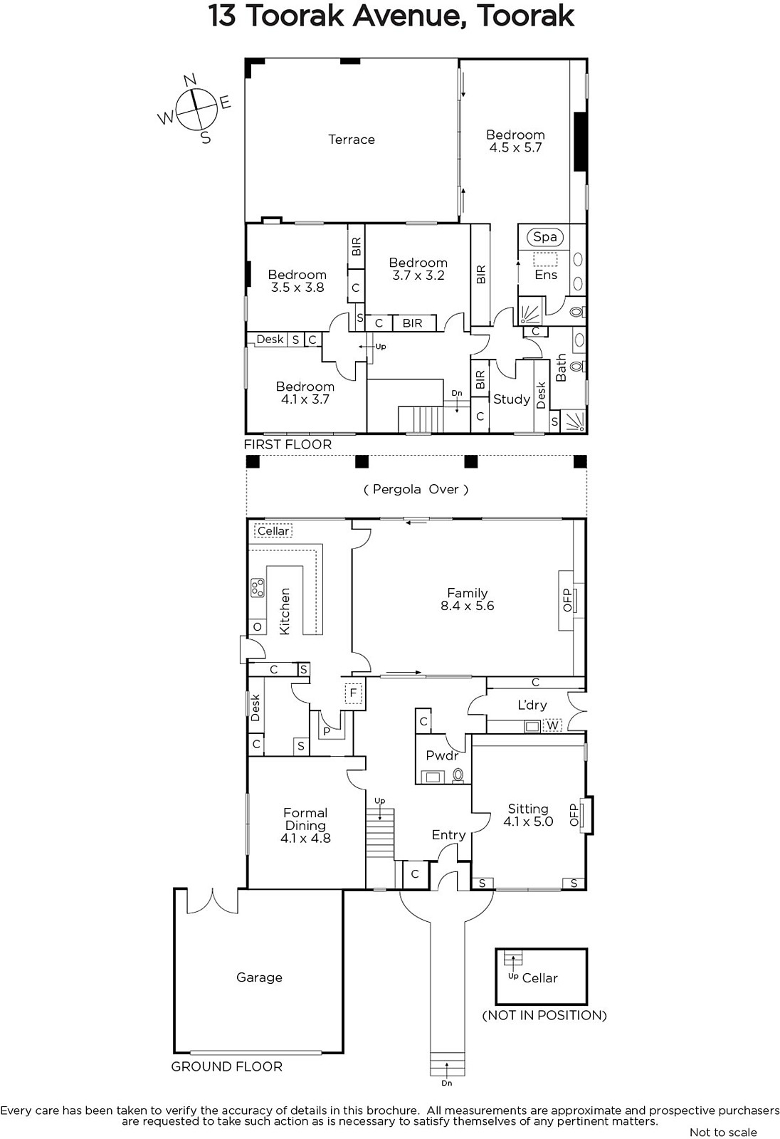
Esteemed architect Marcus Martin's first house which he built for his occupation, has been enhanced by well-known architect Wayne Gillespie and the present architect owner over the past 30 years. This charming two story north-facing house on 837.8sqm approx is surrounded by lush private gardens visible from every room.
The home includes four bedrooms, all with built-in robes, two bathrooms and is complemented by a large solar-heated pool viewed from the capacious casual living and dining room with Jetmaster fire. The large granite kitchen contains a work station and walk-in pantry, while the formal dining room and cosy sitting-room with open fireplace completes the living spaces. Upstairs the master bedroom with expansive sun-drenched terrace has a dressing room and en-suite as well as a further dressing room/study.
Exclusively located within walking distance of Kooyong Village, station and Tennis Club, excellent schools and parks. This home is perfect to enjoy now and also includes alarm, heating and cooling, cellar, laundry, two studies, potting shed, garden watering system and double garage with remote access.
Inspect by Appointment Only
Enquire about this property
Request Appraisal
Welcome to Toorak 3142
Median House Price
$5,008,888
2 Bedrooms
$2,460,000
3 Bedrooms
$3,580,000
4 Bedrooms
$6,350,000
5 Bedrooms+
$13,500,000
Toorak, an emblem of luxury and prestige, stands as Melbourne's most illustrious suburb, located just 5 kilometres southeast of the CBD.













