Sold13 Sutton Street, Balwyn North
Thrilling Potential Just Metres from Balwyn High
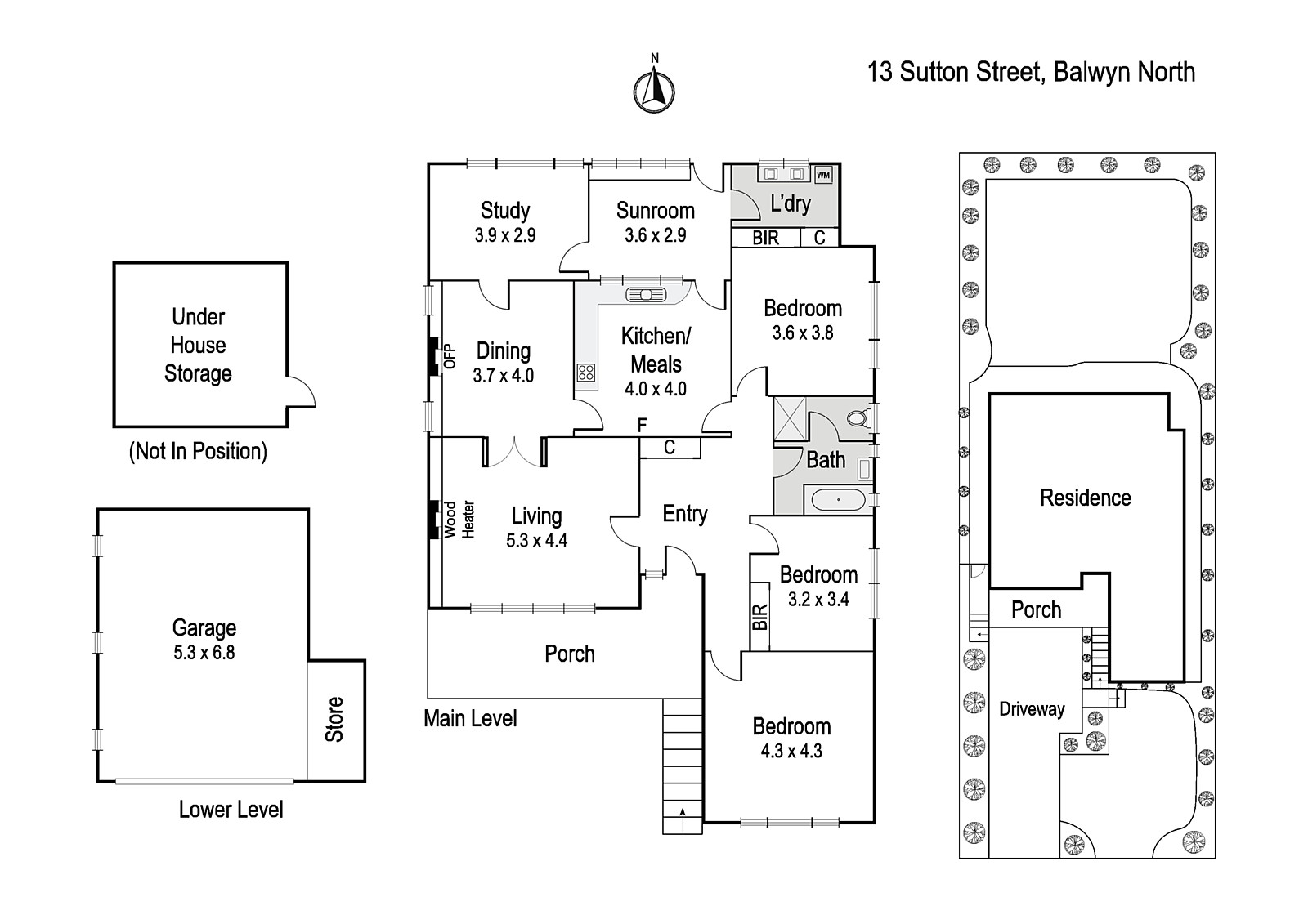
A high-set classic that has been tightly held by one owner since its construction in the 1950s, enjoy the very short walk from this three bedroom home to the gates of Balwyn North Primary and Balwyn High School (in the zone).
The elegance of fireplaces in the spacious lounge and dining rooms is matched with the comfort of ducted heating/air-conditioning, a large north-facing rear garden, a double auto garage and under-house storage.
A lovely basis on which to renovate, consider extending upward or building a deluxe residence on 748 sqm (approx.) to capture the stunning views of the city skyline (STCA).
An in-demand leasing opportunity, receive rental cashflow while organising plans and permits.
Metres to the Doncaster Road tram for a quick trip to prestigious private schools and the city, live near a variety of cafes and restaurants, parks and the freeway.
Enquire about this property
Request Appraisal
Welcome to Balwyn North 3104
Median House Price
$2,364,167
2 Bedrooms
$2,150,833
3 Bedrooms
$1,936,815
4 Bedrooms
$2,395,417
5 Bedrooms+
$2,986,667
Balwyn, located about 10 kilometres east of Melbourne's CBD, is a suburb within the City of Boroondara known for its picturesque streets, grand Edwardian and Georgian homes, and high-quality lifestyle.









