Sold13 St Vincent Place, Albert Park
'Belgrave Terrace' c1870
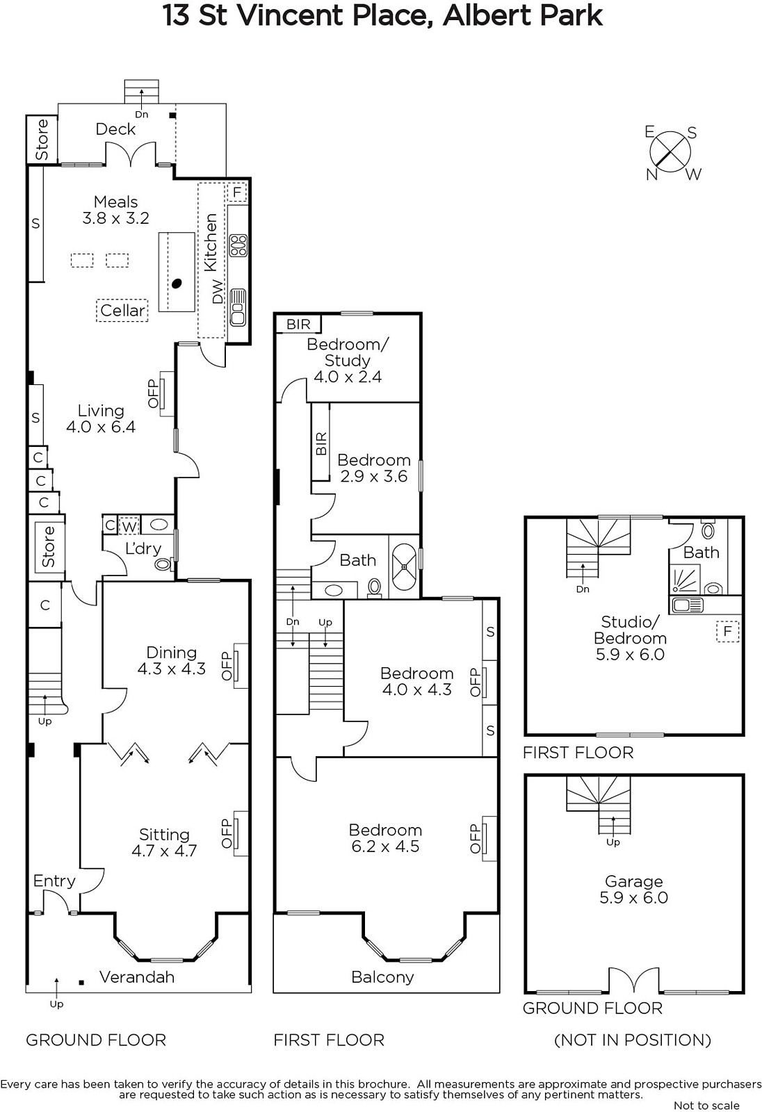
The elegance of the Victorian era and the excellence of modern spaces are compatibly combined throughout this spectacular terrace - a residence that perfectly represents the prestige and the appeal of a St Vincent Place address. Light filled period sitting and dining rooms that retain marble open fire-places reflect a timeless, traditional attraction before leading to separate living/dining areas and an open-plan kitchen where the mood is contemporary and the quality is clear.
Upstairs, a main bedroom of irresistible romance looks across an evocative balcony to the leafiness of St Vincent Gardens sets a stunning tone for three additional bedrooms, each immediately inviting, that surround a stylishly appointed central bathroom. Beyond the elegantly landscaped rear courtyard, classical stables have been converted to offer a secure garage and great storage accessed from Bevan Street, accompanied above by a captivating studio/5th bedroom retreat featuring northern light, its own kitchenette and bathroom. Enjoy a brilliant lifestyle in what is unequivocally one of Melbourne's best locations, moments from Albert Park village, the beach, Albert Park Lake, highly regarded schools, the city and, of course, the beautiful gardens.
Enquire about this property
Request Appraisal
Welcome to Albert Park 3206
Median House Price
$2,425,000
2 Bedrooms
$1,665,008
3 Bedrooms
$2,560,000
4 Bedrooms
$3,616,667
Albert Park, nestled just 3 kilometres from Melbourne’s CBD, is a picturesque suburb known for its blend of historic charm and modern amenities.




















