Sold13 Lurnea Road, Glen Iris
Perfect For Expanding Families
This renovated & extended family residence offers a perfect blend of period charm and contemporary finishes delivering spacious & flexible living zones complementing family lifestyles with generous outdoor entertaining areas. Further enhanced by a sought after family location, surrounded by quality real estate on the Glen Iris Hill in a family friendly tree-lined street close to Ashburton Shopping Centre or Leo's Fine Foods, a variety of schools, Gardiner's Creek trails, Ferndale or Hill "n" Dale Parks, transport options and easy CityLink/CBD access.
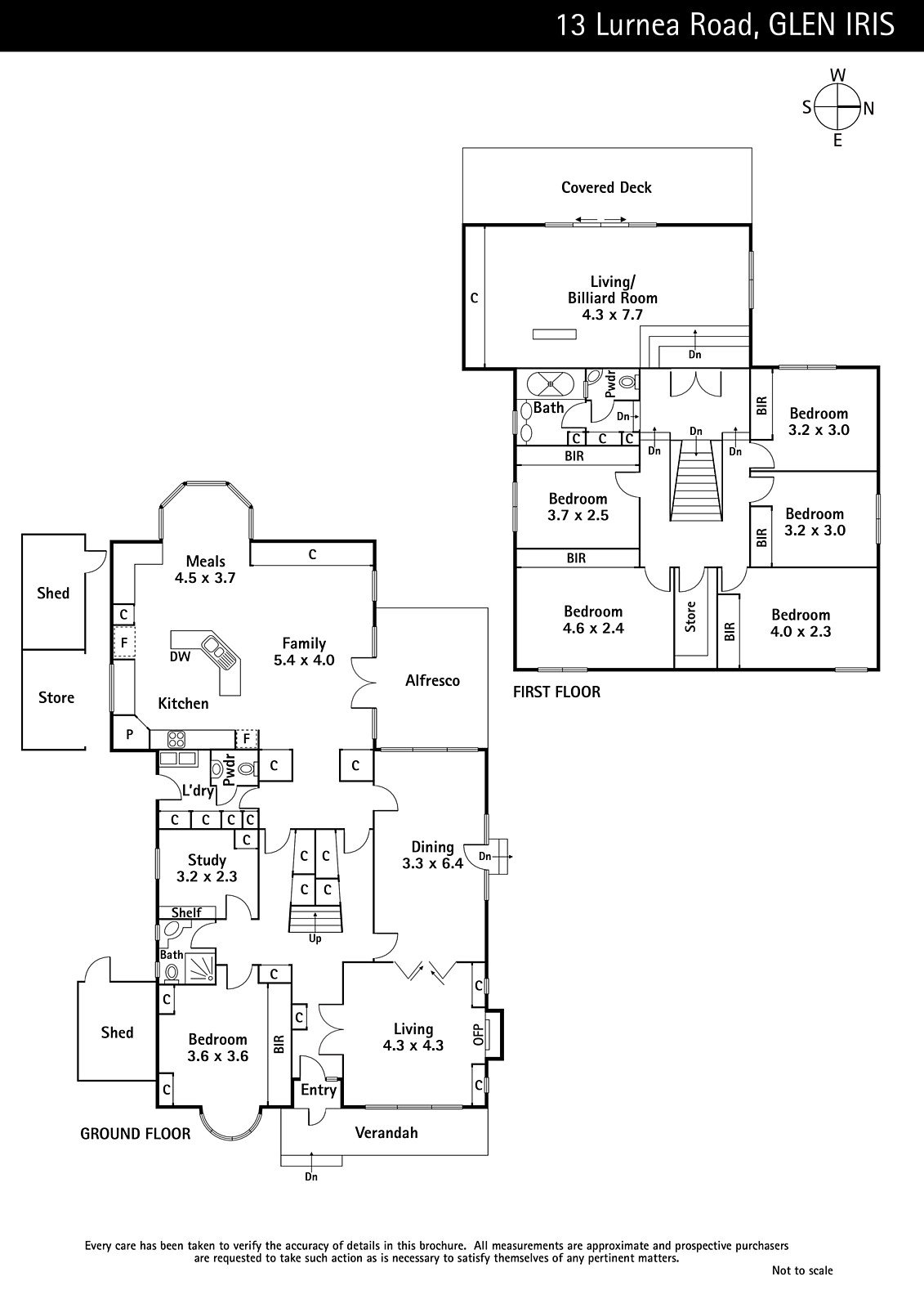
A prominent street presence and an attractive façade with diamond leadlight windows introduces a superbly maintained interior over two levels featuring decorative ceilings and an entrance hall opening to a formal sitting room with adjoining dining, downstairs main bedroom with bay window and BIRs, bathroom, study, laundry with chute and central staircase leading to a further four bedrooms (BIRs), second bathroom/powder room and retreat or recreation room with a wide balcony. An expansive lower level family domain has a well-equipped Euro kitchen leading to a covered outdoor dining area with spa and trampoline overlooking a private and leafy rear garden - just perfect for relaxed enjoyment with family and friends. Other attributes include alarm, ducted heating, water tanks, ample storage, front water features, remote gates to a double carport.
Enquire about this property
Request Appraisal
Welcome to Glen Iris 3146
Median House Price
$2,593,750
2 Bedrooms
$1,528,750
3 Bedrooms
$2,220,250
4 Bedrooms
$2,708,750
5 Bedrooms+
$3,823,500
Glen Iris, situated approximately 10 kilometres southeast of Melbourne's CBD, is a well-established and affluent suburb known for its leafy streets, spacious parks, and prestigious schools.











