Sold13 Dunlop Street, Ashburton
Excellent Family Living and Entertaining
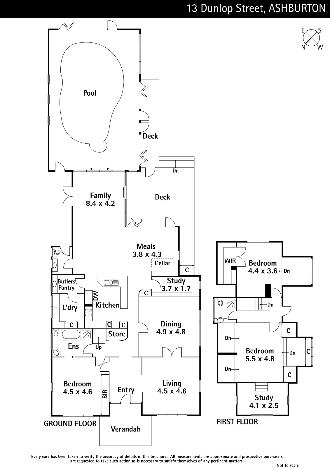
This c1927 four-bedroom residence showcases modern family living in a period context, moments from Darling station and Gardiners Creek Trail. Huge ground floor features leadlight windows and timber panelling, large entrance hallway that flows to the grand formal sitting and dining rooms and refined study. A gourmet kitchen with Bosch appliances and stone benchtops, butler's pantry, powder room, large laundry and wine cellar complement expansive open-plan family living/dining area opening to a heated indoor pool and an inviting outdoor entertaining area. Generous main bedroom with BIR and en-suite is complemented by three first floor bedrooms and shared main bathroom with attic storage and views to the surrounding area. Extra features include solar electricity and hot water, shed, extensive under house storage, dual street frontage and parking, situated in a family-oriented locale, a short distance from Korowa, Sacre Cœur & Glen Iris Primary schools, Chadstone shopping centre, the Monash Freeway, local parkland and sporting precinct.
Enquire about this property
Request Appraisal
Welcome to Ashburton 3147
Median House Price
$1,973,750
3 Bedrooms
$1,676,250
4 Bedrooms
$2,110,250
5 Bedrooms+
$2,260,000
Ashburton, situated about 12 kilometres southeast of Melbourne's CBD, is a suburb that seamlessly merges its historical origins with modern living and a dynamic real estate market.


















