Sold13 Dundas Place, Albert Park
Quintessential Victorian terrace, Albert Park village Precinct
Inspections strictly by appointment during advertised times.
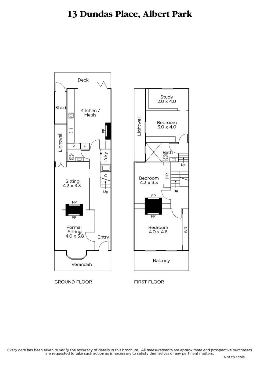
One of Albert Park's most sought-after positions compliments the opportunity to enjoy this renovated terrace with beautiful period elegance. Behind this exquisite c1860 façade and entrance, solid timber floors lead to a striking bay windowed sitting room with marble mantle open fireplace. A second intimate sitting room also with marble mantle open fireplace provides a sensational balance of living space commensurate with today's living requirements.
The kitchen and meals area comprises stone benchtops, pantry, excellent cupboard and bench space with modern appliances and the open fireplace offering a sensational atmosphere with indoor alfresco cooking all year round. Open the bi-fold doors to the rear garden courtyard, completely private and ideal for entertaining and for excellent natural light.
Upstairs provides balconied master bedroom (marble OFP) extensive built-in cupboard space, second bedroom with light well, central bathroom with Terazzo floor, large shower recess, toilet and marble vanity and the third light filled bedroom, and a further fourth bedroom/study. Further separate powder room, under stair storage, cellar/storage and concealed laundry are all cleverly designed.
Complete with hydronic heating throughout, fully re-wired, plumbed, and exceptionally well maintained. CCTV, sprinkler system, instantaneous hot water service, state of the art LED lighting throughout.
A brilliant sense of community in this tightly held tree lined street and is walking distance to MSAC, Victoria Avenue, Bridport Street, Light Rail & Trams. Dundas Place has one of Melbourne's best kindergartens, medical clinics, and the property is in the Albert Park School Zone.
Enquire about this property
Request Appraisal
Welcome to Albert Park 3206
Median House Price
$2,440,000
2 Bedrooms
$1,677,500
3 Bedrooms
$2,518,750
4 Bedrooms
$3,762,500
Albert Park, nestled just 3 kilometres from Melbourne’s CBD, is a picturesque suburb known for its blend of historic charm and modern amenities.



















