Sold12B Morley Crescent, Box Hill North
Stunning New Double-Level Town Residence
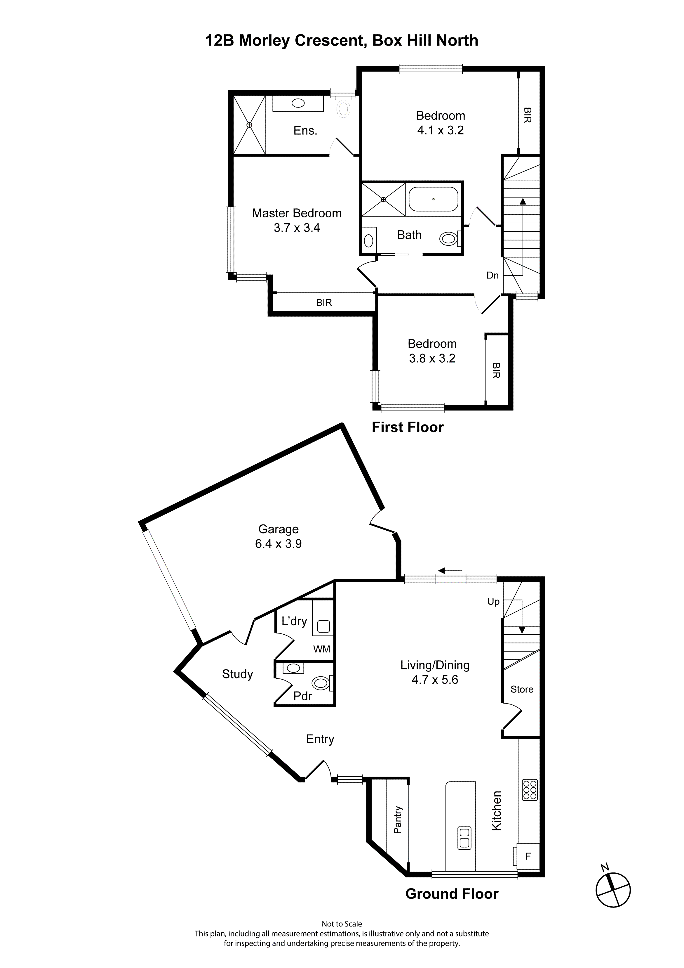
Be the first to own this luxurious new double stroreys town residence is situated in an elevated position in the middle of the complex in a family-friendly area undergoing renewal. The stunning home capitalises on an interior with a northern orientation, where large windows and an all-white décor creates an ambience of light and spacious living. Beautiful pale timber floor boards are featured internally. Through to a generous living and dining area; incorporating a sleek kitchen equipped with Stone bench tops, island bench, WIP and a full complement of prestige Bosch appliances. Flowing to a northern deck and courtyard - providing room for indoor/outdoor entertaining and alfresco relaxation.
A further three double bedrooms with built-in robes, pale grey carpets and a fully-tiled family bathroom are situated on the upper level. Other attributes include new surrounding landscaping, Digital Key lock entry, in-vogue black fittings and shades of grey, R/C air conditioners (living and bedrooms), a rain water tank plus auto front gates leading to a remote garage with secure internal access. This desirable opportunity is further enhanced by its proximity to the many amenities offered by a prime Box Hill position. Moments from Bushy Creek trails or Memorial Park and between Elgar and Springfield Parks. With easy access to Box Hill Central or Westfield Doncaster for shopping and restaurants; or the myriad of employment and educational opportunities provided by the Box Hill Hospitals and the TAFE. With an assortment of schools nearby including Box Hill North Primary and Box Hill or Koonung Secondary Colleges. It also well placed for quick access to the CBD via Eastern Freeway or public transport options

















