Sold128 Victoria Road, Hawthorn East
Stunning Victorian With Lifestyle Appeal
Step inside and soak up the ambience of this superbly renovated and extended double fronted, slate roofed Victorian family residence circa early 1890s. Introduced by an irresistible street presence, classic period façade and a tranquil water feature. The fully renovated interior trumps it all delivering a stunning combination of original front rooms and contemporary living and entertaining spaces plus high ceilings throughout; which has been designed and carried out with flair and attention to detail leaving a lasting impression.
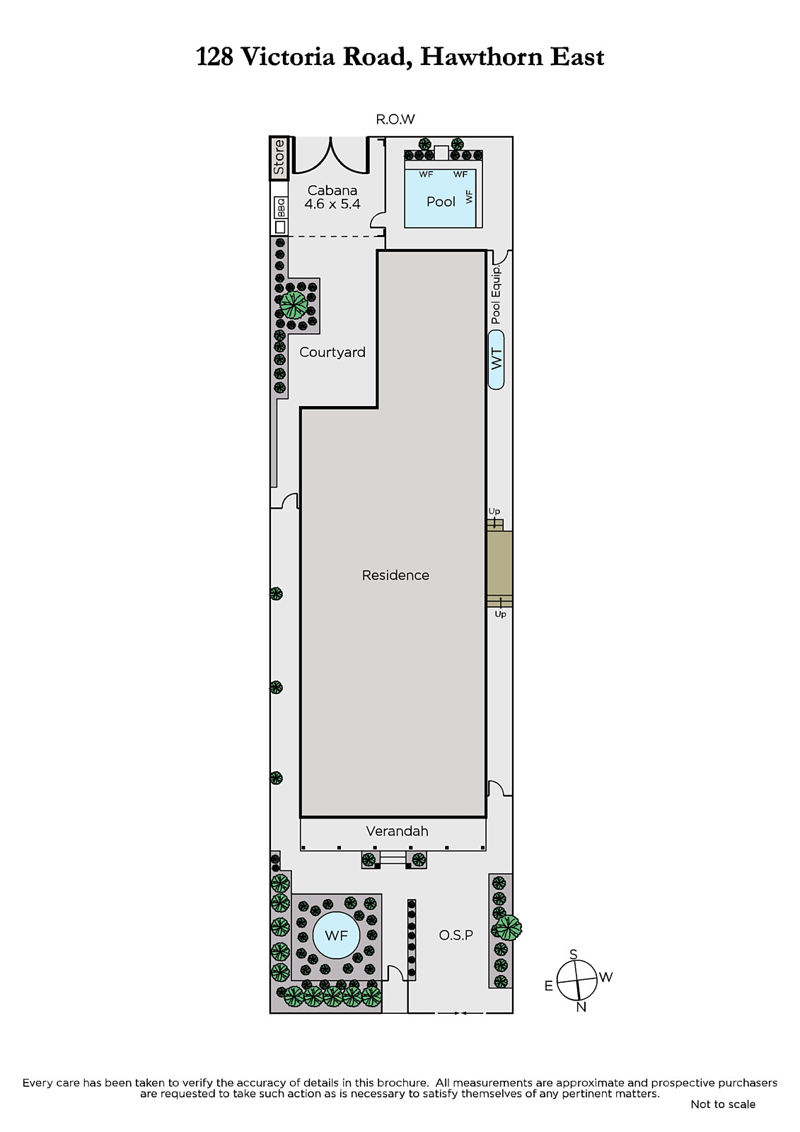
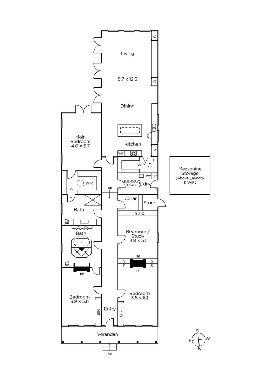
A wide double arched central hallway is flanked by three gorgeous bedrooms, generous main with a dressing room plus two dual access ensuites, a fitted study/library, wine room and a large laundry. Through to the expansive family living and dining domain offering the ultimate in entertaining facilities, incorporating a state-of-the-art granite kitchen with a full complement of premium Miele appliances, WIP and sky windows; flowing to the paved outdoor entertaining area which includes a lush garden gently shaded by a mature Camphor Laurel tree, slate-roofed cabana, covered outdoor dining and a gas-fitted stainless steel barbeque kitchen overlooking a gas-heated pool. Delivering perfect amenities for relaxing with family and friends. Other features of this beautiful home include alarm, hydronic heating, air conditioners (family room), OFPs, rainwater tank, plumbed irrigation system, plantation shutters, loads of storage, rear lane access if desired and front off-street parking with remote gates.
The home is also ideally positioned near the top of Victoria Road Hill with its close proximity to the eclectic Auburn Village cafes, shops and station plus Glenferrie Road or Camberwell Junction shopping, boutiques, cafes and Cinemas. Plus Sir William Angliss and Rathmines Road Reserves for recreation. Whilst many of Melbourne's finest public and private schools, as well as Swinburne University are all within walking distance - which underpins the enjoyable lifestyle benefits attached to this home.
Land size 605sqm approx.
Enquire about this property
Request Appraisal
Welcome to Hawthorn East 3123
Median House Price
$2,536,750
2 Bedrooms
$1,525,750
3 Bedrooms
$2,093,750
4 Bedrooms
$2,985,000
5 Bedrooms+
$3,822,500
Situated 7 kilometres east of Melbourne's centre, Hawthorn East offers a coveted mixture of greenery, historic charm, and modern amenities that cater to a wide range of preferences and lifestyles.




















