Sold127 Wellington Street, Kew
Contemporary Style Wins Out
Benefiting from a blue chip location in the heart of the prestige school precinct close to Kew Junction, Glenferrie Road's fashionable shops, restaurants, cafes, with public transport and parklands nearby plus easy CBD access all enhances the appeal of this single-front Victorian cottage situated in an iconic row of cottages named "Warsaw Terrace" c1890.
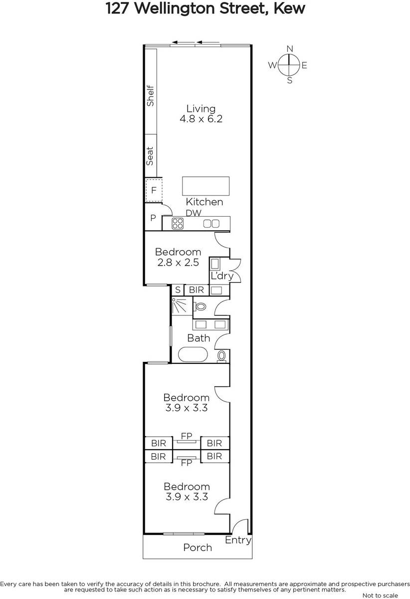
All six cottages have an identical period façade with iron fences, tuck-point Hawthorn bricks and exterior colour scheme preserving their heritage appeal. Recently renovated from front to rear this one has a something special to offer from the superbly designed interior creating deceptively spacious accommodation to a smart decor featuring crisp white walls and grey carpets plus excellent indoor/outdoor entertaining options. A long hallway with polished timber floors opens to three bedrooms with BIRs, or two plus study, central light-well courtyard, pristine bathroom, powder room & concealed laundry; through to light-filled extension incorporating a sleek Stone and Miele kitchen with stainless steel stove, integrated dishwasher and frig/freezer plus a sunny north-facing dining and living room with full-height glass, sky windows and sliding doors flowing to a paved courtyard. Other features include period attributes, OFPs, ducted heating & cooling & ample storage.
Enquire about this property
Request Appraisal
Welcome to Kew 3101
Median House Price
$2,666,500
2 Bedrooms
$1,575,000
3 Bedrooms
$2,173,500
4 Bedrooms
$2,926,250
5 Bedrooms+
$4,580,000
Kew, positioned just 5 kilometres east of Melbourne's CBD, is renowned for its sophistication and elegance.














