For Lease12 Deepdene Road, Deepdene
Family home in exclusive Deepdene location
Inspections
Please refer below for inspection instructions.
Designed to complement a busy, modern lifestyle, this impressive Executive two storey residence is enviably located in one of Boroondara's finest and most highly regarded residential areas with no Heritage Overlay.
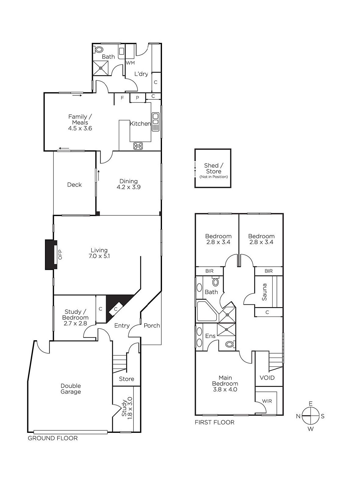
Enjoying a pretty treelined street, the home offers a low maintenance lifestyle with an abundance of natural light from its large windows providing privacy and leafy garden vistas. A distinctive rendered façade introduces a stylishly appointed home, being recently updated with a neutral toned interior. Featuring warm timber floorboards, home office or 4th bedroom, expansive family living with OFP, separate dining area, a sleek Caesar Stone kitchen/meals area equipped with prestige European stainless steel appliances with adjacent bathroom/powder room & laundry; opening to a sunny paved alfresco terrace and rear garden with ROW access.
Complemented upstairs by three further bedrooms (Master with WIR/Ensuite) all with treetop views, plus a large family bathroom. Other features include a fully fitted out home office, air-conditioning, heating, ample storage, remote double garage with direct internal access.
This appealing family home is enhanced by a convenient "walk to" lifestyle just moments to some of Melbourne's finest schools including Camberwell Boys/Girls Grammar, Fintona and zoned to Canterbury Girls School, moments from Camberwell Junction, Balwyn, Kew and Deepdene cafes and shopping; plus parklands, walking trails and tram and train all close by.
**To Inspect**
To book an inspection, click either the ‘Request Online Inspection Link’ or ‘Get in Touch’ then select ‘Request an Inspection’ to enter your details. An inspection invitation will then be sent to you via our application platform. If there are no available inspection times, or you cannot attend the listed time, please send an enquiry or contact the leasing agent for further assistance. Please note ‘add to plan’ is not booking into the inspection.
**Please Note**
Open for Inspection times and property availability is subject to change without notice. We highly recommend registering for an inspection you are going to attend to avoid disappointment for cancellations. If you are registered for an inspection, you will be notified by SMS if the inspection is cancelled.
**Caution**
Marshall White has exclusive leasing rights to this property. We do not advertise on Gumtree, Facebook Marketplace or any other social media platforms. Please beware of scammers and apply only via the official advertising link using the Snug platform.
Enquire about this property
Request Appraisal
Welcome to Deepdene 3103
Median Rental Price
$1,040
4 Bedrooms
$1,010
Deepdene, located 10 kilometres east of Melbourne’s CBD, is an exclusive and serene suburb known for its grand homes and leafy streets.
















