Sold12 Deepdene Road, Balwyn
ONSITE Auction by Registration - 1.30pm Saturday 31st October
Inspections strictly by private appointment only. Please contact the listing agent to schedule a time.
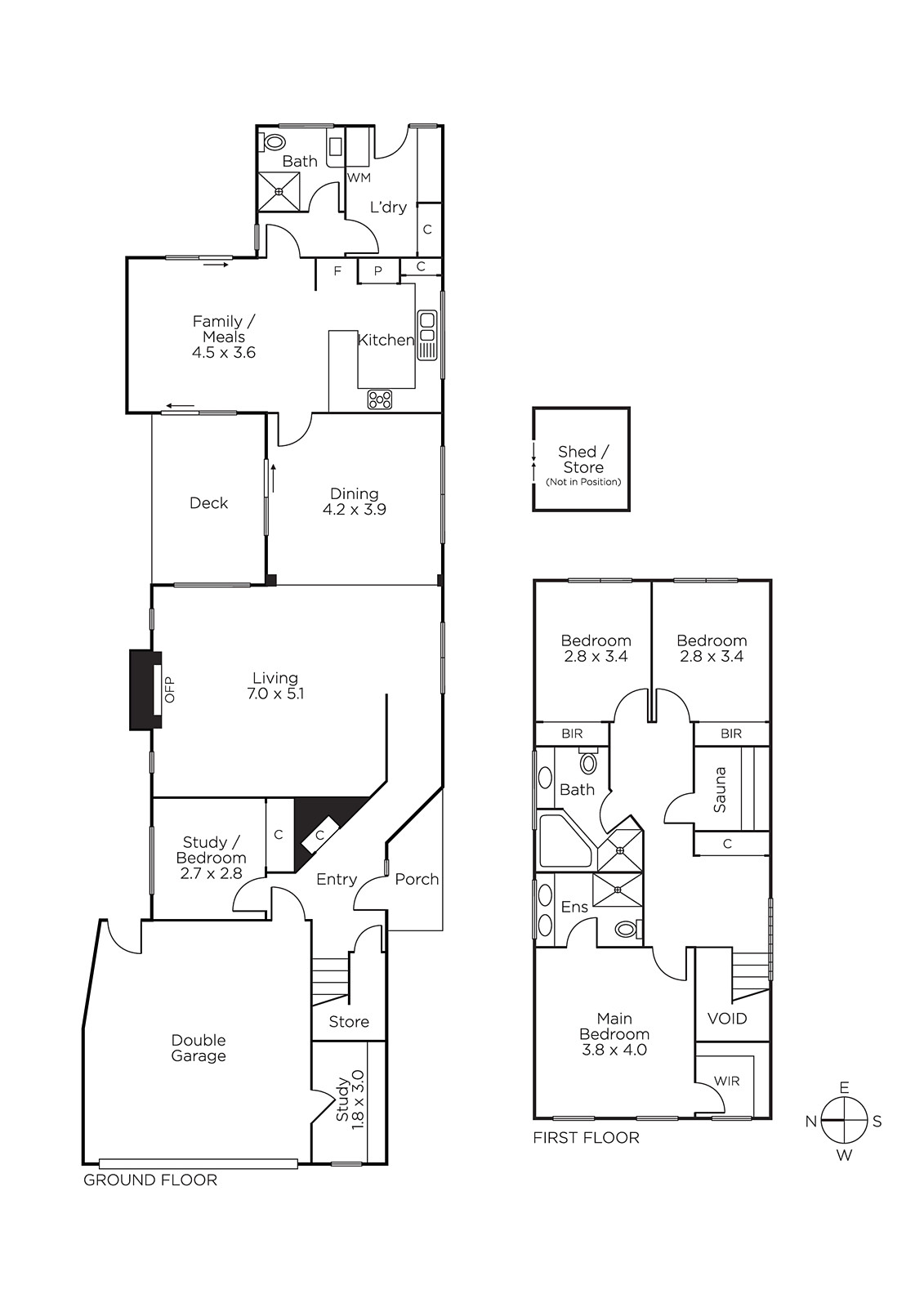
Designed to complement a busy, modern lifestyle, this impressive Executive two storey residence is enviably located in one of Boroondara's finest and most highly regarded residential areas with no Heritage Overlay. Enjoying a pretty treelined street, the home offers a low maintenance lifestyle with an abundance of natural light from its large windows providing privacy and leafy garden vistas. A distinctive rendered façade introduces a stylishly appointed home, being recently updated with a neutral toned interior. Featuring warm timber floorboards, home office or 4th bedroom, expansive family living with OFP, separate dining area, a sleek Caesar Stone kitchen/meals area equipped with prestige European stainless steel appliances with adjacent bathroom/powder room & laundry; opening to a sunny paved alfresco terrace and rear garden with ROW access. Complemented upstairs by three further bedrooms (Master with WIR/Ensuite) all with treetop views, plus a large family bathroom. Other features include a fully fitted out home office, underfloor heating, air-conditioning, ample storage, remote double garage with direct internal access.
This appealing family home is enhanced by a convenient "walk to" lifestyle just moments to some of Melbourne's finest schools including Camberwell Boys/Girls Grammar, Fintona and zoned to Canterbury Girls School, moments from Camberwell Junction, Balwyn, Kew and Deepdene cafes and shopping; plus parklands, walking trails and tram and train all close by.
Enquire about this property
Request Appraisal
Welcome to Balwyn 3103
Median House Price
$2,869,400
2 Bedrooms
$2,190,400
3 Bedrooms
$2,410,000
4 Bedrooms
$2,700,000
5 Bedrooms+
$3,875,000
Balwyn, located about 10 kilometres east of Melbourne's CBD, is a suburb within the City of Boroondara known for its picturesque streets, grand Edwardian and Georgian homes, and high-quality lifestyle.


















