Sold12 Bent Street, Malvern East
A Captivating Opportunity
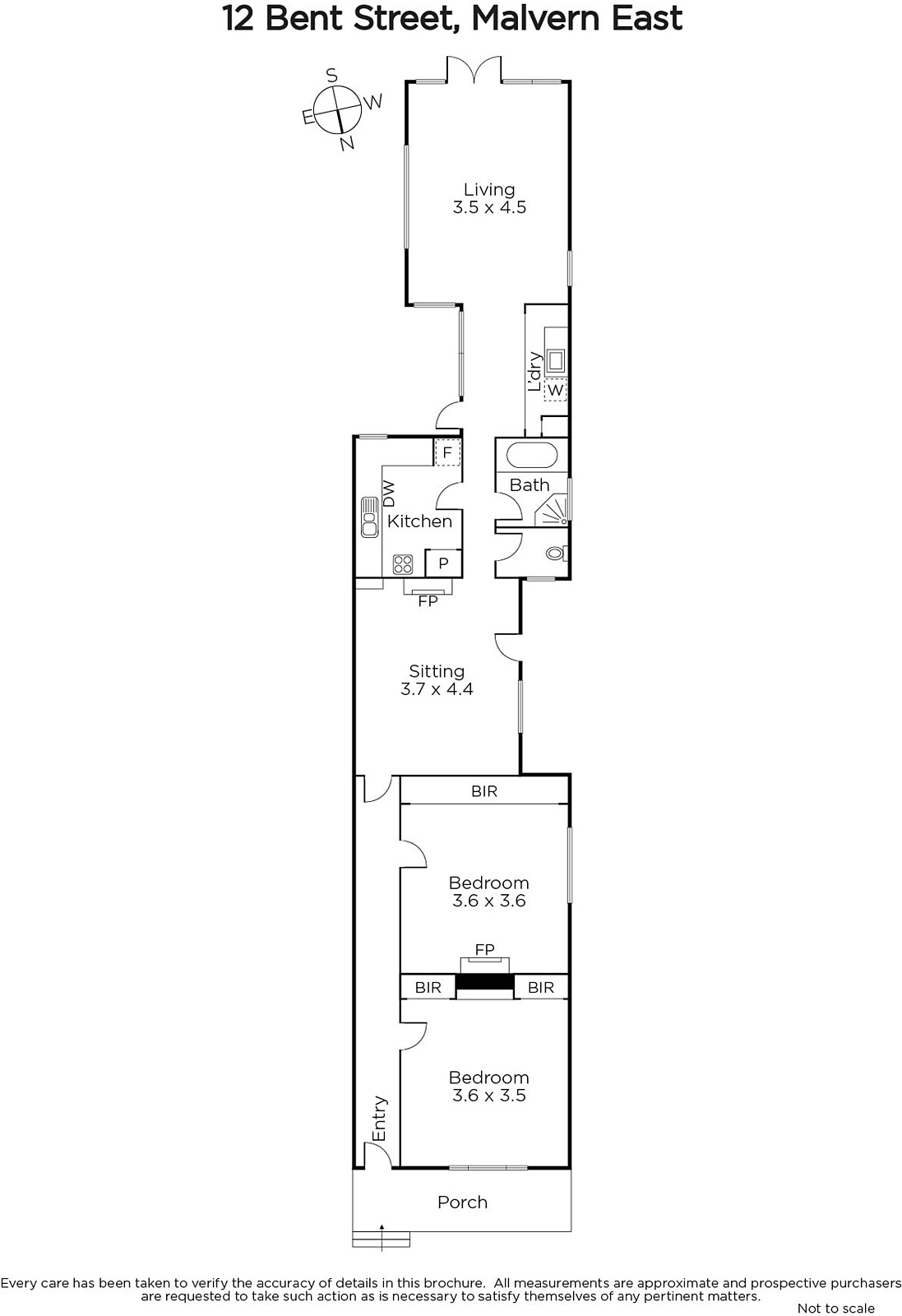
Set behind its pretty period façade in one of Malvern East's ideal locations, this single fronted Victorian residence offers an exceptional opportunity to secure a home that provides comfort for today and huge potential (STCA) for tomorrow. The original residence, defined by high ceilings and attractive proportions, consists of two bedrooms and a sitting room. A previously extended floorplan, opening through from a functional kitchen and bathroom and central light court, offers additional living space and overlooks the private rear garden. A single garage accessed from the right of way at the rear of the property provides the enviable amenity of off street parking. Move in immediately, update, renovate or extend in the future - the options are yours to contemplate, secure in the knowledge that you have acquired a foothold in a superb location close to Waverley Road Village, trams, trains, shops and cafes, St Mary's and Lloyd Street Primary Schools, the Monash Caulfield campus, Central Park and Ardrie Park. Land Area: 279sqm approx.
Enquire about this property
Request Appraisal
Welcome to Malvern East 3145
Median House Price
$2,182,500
2 Bedrooms
$1,457,500
3 Bedrooms
$1,930,000
4 Bedrooms
$2,530,500
5 Bedrooms+
$2,962,500
Situated 12 kilometres southeast of Melbourne’s bustling CBD, Malvern East is a suburb renowned for its blend of family-friendly charm and cosmopolitan living.












