Sold12 Beatrice Street, Glen Iris
Stunning Single Level Elegance and Style
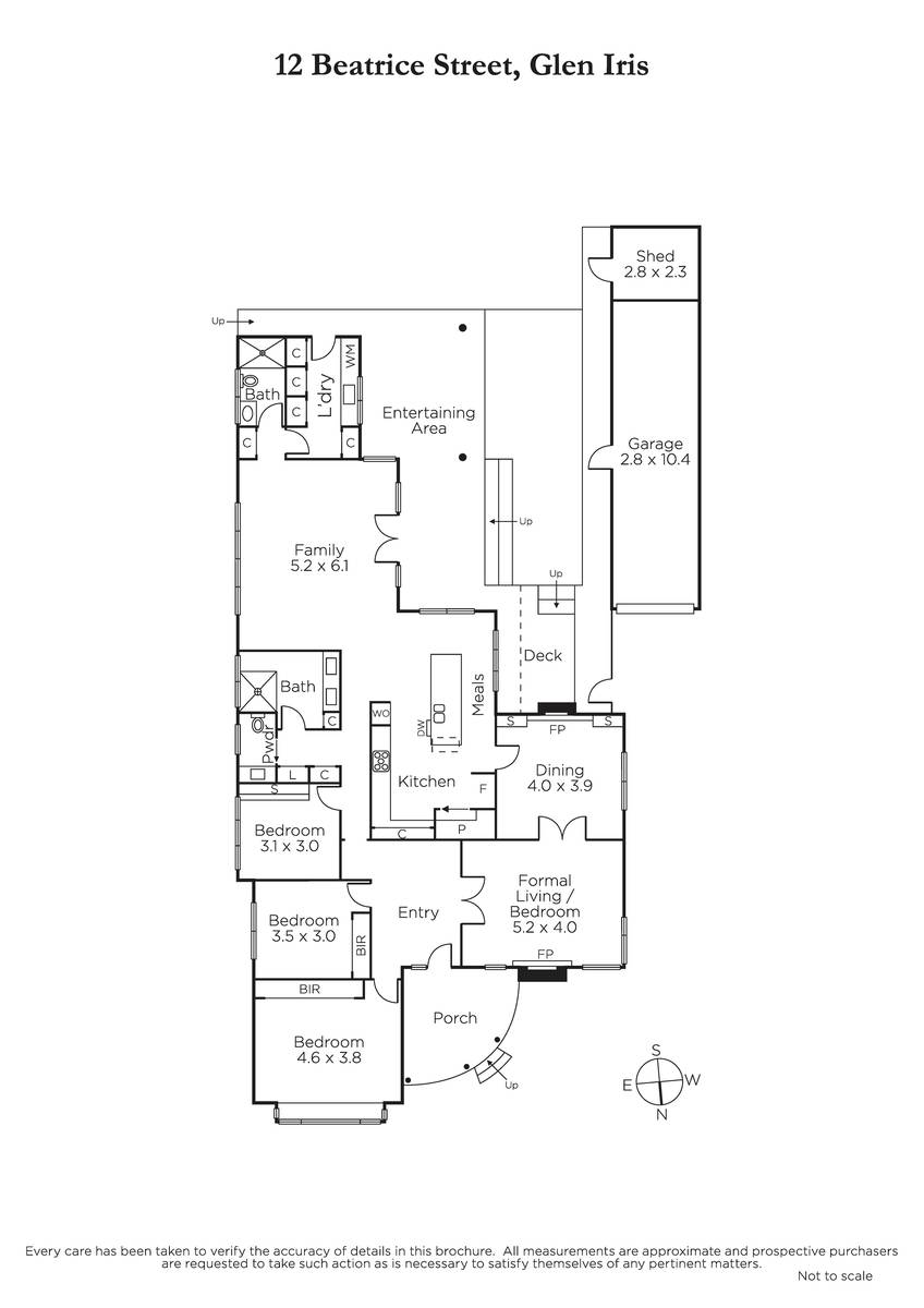
Behind the classic c1950's solid brick exterior, this captivating residence's brilliantly renovated and extended dimensions deliver unbeatable single level living with an inspired sense of style. Original ceilings and polished timber floors are featured in the exceptionally generous central entrance hall which flows through to elegant formal living/4th bedroom and separate dining room, both with original brick fireplaces and etched glass French doors. A chef's dream kitchen appointed with stone benches and premium Bosch appliances and the expansive living room open out to a large covered al fresco dining deck with sun blinds and the leafy private garden surrounds. The beautiful main bedroom with window seat and built in robe complements a second bedroom with robes, a home office or bedroom and two stylish bathrooms. In a desirable location near Ashburton Village, Leo's Supermarket, Burwood station, parks, Toorak Rd trams, schools and freeway access, it includes alarm, CCTV, double glazing throughout, heating/cooling, audio wiring, laundry, wine storage, remote sun-awning, ample storage, shed and tandem garage.
Enquire about this property
Request Appraisal
Welcome to Glen Iris 3146
Median House Price
$2,575,000
2 Bedrooms
$1,525,000
3 Bedrooms
$2,167,500
4 Bedrooms
$2,692,500
5 Bedrooms+
$3,823,500
Glen Iris, situated approximately 10 kilometres southeast of Melbourne's CBD, is a well-established and affluent suburb known for its leafy streets, spacious parks, and prestigious schools.


















