Sold12 Arnold Road, Brighton East
Land with a Prized Location
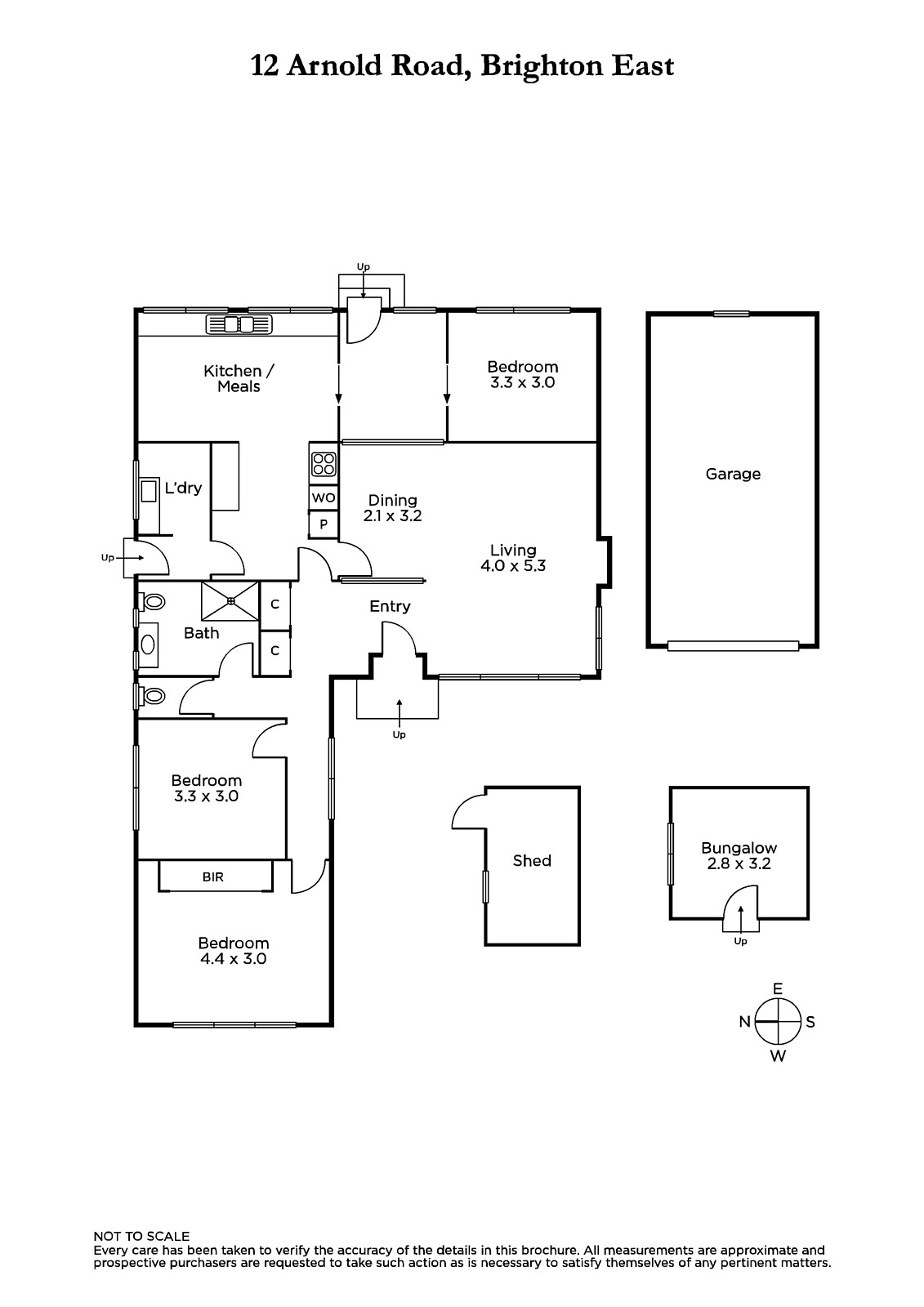
Acquire a prime address near schools and metres from Dendy Park and work on a grand plan STCA to make the most of this Brighton East address. There's 682sqm approx. of land and a comfortable home, ready to rent out or live in while your vision is in the planning stages. Well-kept home has three bedrooms, a spacious living and dining room, large kitchen with meals area, and a generous garden with a garage and storage. Land this good is the perfect foundation for new luxury. Be inspired by the fine homes that have transformed Arnold Road for a new generation of family convenience and quality. The location is sought-after and central to so many Bayside destinations. It's in the Brighton Secondary College zone, St Leonard's College and Haileybury are close enough to walk to, and the wide-open spaces of Dendy Park are doors away. Local shops, Brighton Golf Course and nearby public transport simply add to the appeal of this prized neighborhood, where families will feel at home in a low-traffic leafy street.
Enquire about this property
Request Appraisal
Welcome to Brighton East 3187
Median House Price
$2,109,000
2 Bedrooms
$1,437,500
3 Bedrooms
$1,807,500
4 Bedrooms
$2,382,500
5 Bedrooms+
$2,769,000
Known to be quieter than its neighbours, Brighton East is a highly sought-after location, blending community vibes, heritage aesthetics and a suburban charm that keeps locals loyal to its appealing beachside lifestyle.
















