Sold119 New Street, Brighton
Investment Opportunity - $1350pw Rental Yield
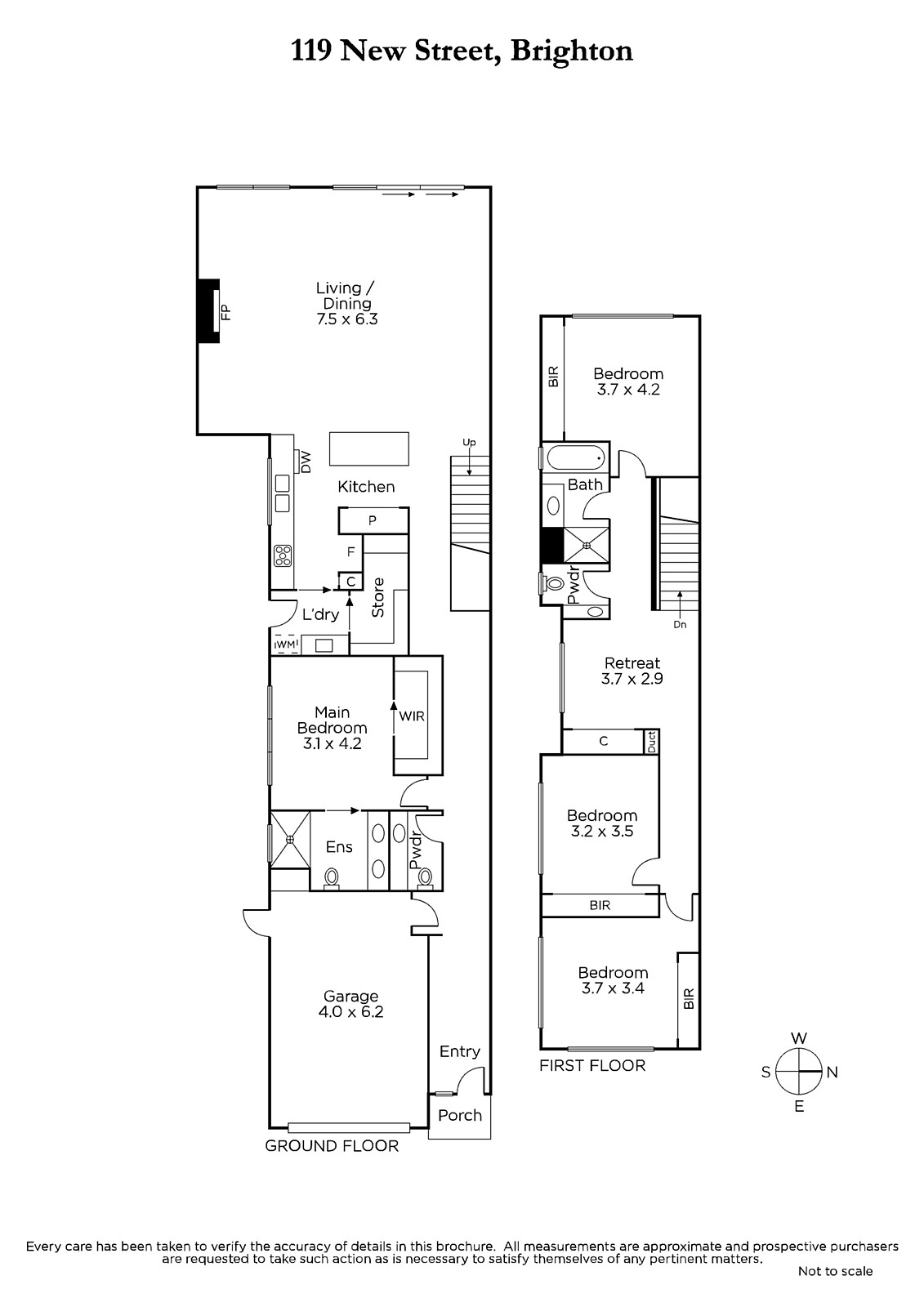
Conveying exceptional architectural flair, this near-new custom designed residence is brought to life with a selection of superb design elements and a low maintenance garden. Add to that the pivotal position close to Church Street shopping, the beach and a choice of private schools and you have an exceptional family home. The interior makes an instant impact with cedar front door, engineered French oak flooring, sleek finishes, commercial grade windows/sliding doors and elevated ceilings.
The open plan design welcomes sun-drenched living with sliding doors opening to the rear deck to enjoy watching the sun go down. For those winter nights, cozy up to the large gas fireplace for relaxed family living. Plenty of room to entertain with a flexible dinning/ lounge floorplan. The Kitchen is fitted with stone benchtops, stainless steel appliances including a double oven with gas cook top, integrated dishwasher complemented by sophisticated cabinetry and semi butler's pantry.
The ground-floor is completed with a private master bedroom with walk in robe and ensuite. The top-floor 3-bedroom accommodation continues the theme of generously proportioned spaces with built-in robes and a family bathroom, with separate powder room plus an additional living zone to watch TV, study or chill out.
Comprehensive appointments include secure remote gates to a cedar door garage plus additional secure off-street parking, dual A/C systems, ducted-heating, alarm system with intercom, watering system and water tank. The home has a 6.7 energy rating, a very efficient sustainable home.
So close to schools, the beach, church street shopping, you can live in the utmost comfort and enjoy the Brighton lifestyle.
Enquire about this property
Request Appraisal
Welcome to Brighton 3186
Median House Price
$3,255,000
2 Bedrooms
$1,954,250
3 Bedrooms
$2,487,500
4 Bedrooms
$3,662,500
5 Bedrooms+
$4,714,700
Brighton, located just 11 kilometres southeast of Melbourne CBD, is synonymous with luxury and elegance in the real estate market.















