Sold110 Graham Street, Port Melbourne
Love the Light-filled Lifestyle
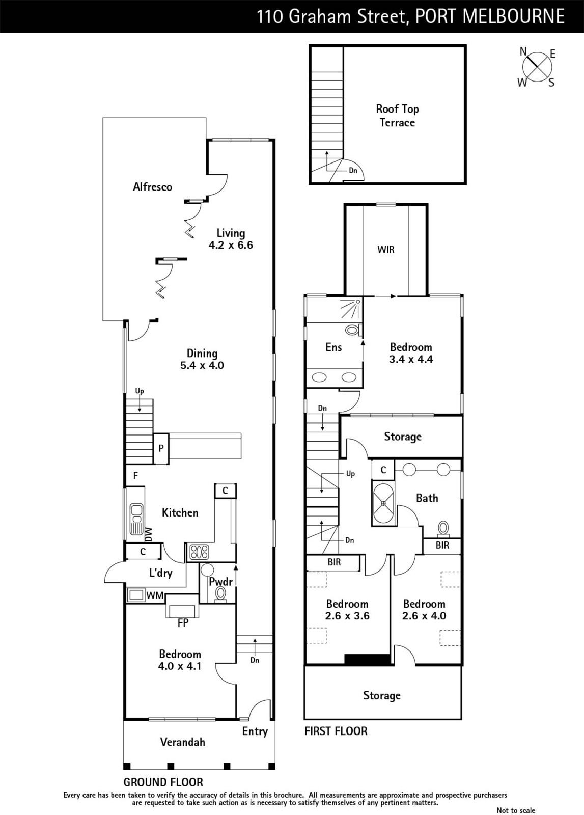
Totally transformed from traditionally attractive cottage origins, this Victorian's charming façade belies little of the scale, style and size that awaits within. Four spectacular bedrooms, including a superb main suite featuring city views, deliver outstanding accommodation to a dynamic multi-level floor plan. Downstairs living dimensions defined by the abundant light and sense of space that are this home's hallmarks are complemented by a beautifully equipped kitchen while a rooftop garden takes in dramatic city sights. Hydronic heating, complete security. A private backdrop with in-ground trampoline and secure side lane access adds to the allure of an address offering ideal proximity to childcare, schools, parks, Bay Street and the Port Melbourne beachfront.
Enquire about this property
Request Appraisal
Welcome to Port Melbourne 3207
Median House Price
$1,565,000
2 Bedrooms
$1,255,000
3 Bedrooms
$1,602,500
4 Bedrooms
$2,250,000
5 Bedrooms+
$1,262,000
Port Melbourne, located just 5 kilometres southwest of Melbourne's CBD along the shores of Port Phillip Bay, is a suburb that seamlessly merges its rich maritime history with contemporary urban living. This area is celebrated for its beaches, including Port Melbourne Beach and its historic piers, offering both leisure and a glimpse into the suburb and port origins.













