Sold110 Gordon Street, Balwyn
Under Contract
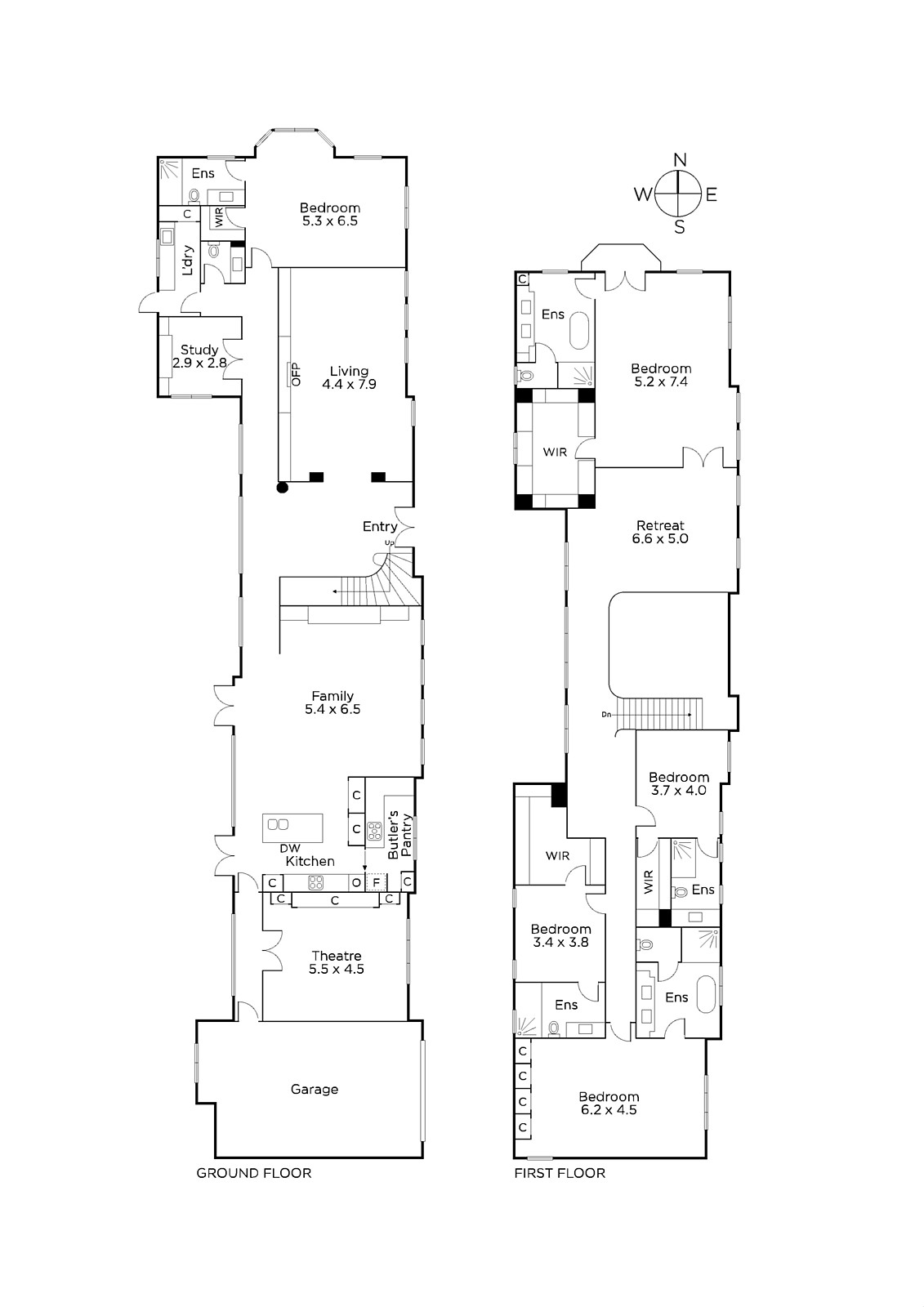
Brilliantly designed to mirror classic European architecture, the magnificent dimensions of this brand new 5 bedroom, 5 bathroom luxury residence impressively showcase contemporary elegance at its finest. From the palatial scale to the sumptuous finishes, every element reflects elite standards.
An elegant reception hall boasting double height ceilings, marble floors and beautiful chandelier introduces an equally captivating sitting room featuring dark oak parquetry floors and marble surrounded gas fireplace and a refined study. Oak parquetry floors continue through the spectacularly proportioned living and dining room opening to a private outdoor precinct with heated pool and fabulous covered al fresco terrace with BBQ kitchen. The state of the art Calacatta marble kitchen is impeccably appointed with Miele appliances including a coffee maker and butler's pantry with 2nd cooktop. Beyond the living area, a sensational home theatre is fully appointed with surround sound and screen. A lavish bedroom with marble en-suite and walk in robe is downstairs while a grand staircase leads up to two opulent main bedrooms with luxurious marble en-suites and walk in robes, two additional double bedrooms with marble en-suites and walk in robes and a large retreat.
Enviably situated within the Balwyn High School zone and walking distance to Balwyn Village shops and restaurants, trams and parks, the home is comprehensively appointed with alarm, CCTC, video intercom, ducted vacuum, heating and cooling, powder-room, laundry and internally accessed large double garage.













