Sold11 Mangarra Road, Canterbury
AUCTION THIS SATURDAY - Golden Mile - No Heritage, Perfect Home Site
Boasting a coveted address in the prized Golden Mile precinct - among some of the area's most prestigious properties in this highly sought-after residential area. Close to Boroondara Park and the old outer circle trails plus easy access to several of Melbourne's finest schools including Canterbury Girls Secondary College at the doorstep and equidistant from Maling Road or Whitehorse Road shops and cafes plus Balwyn Cinema.
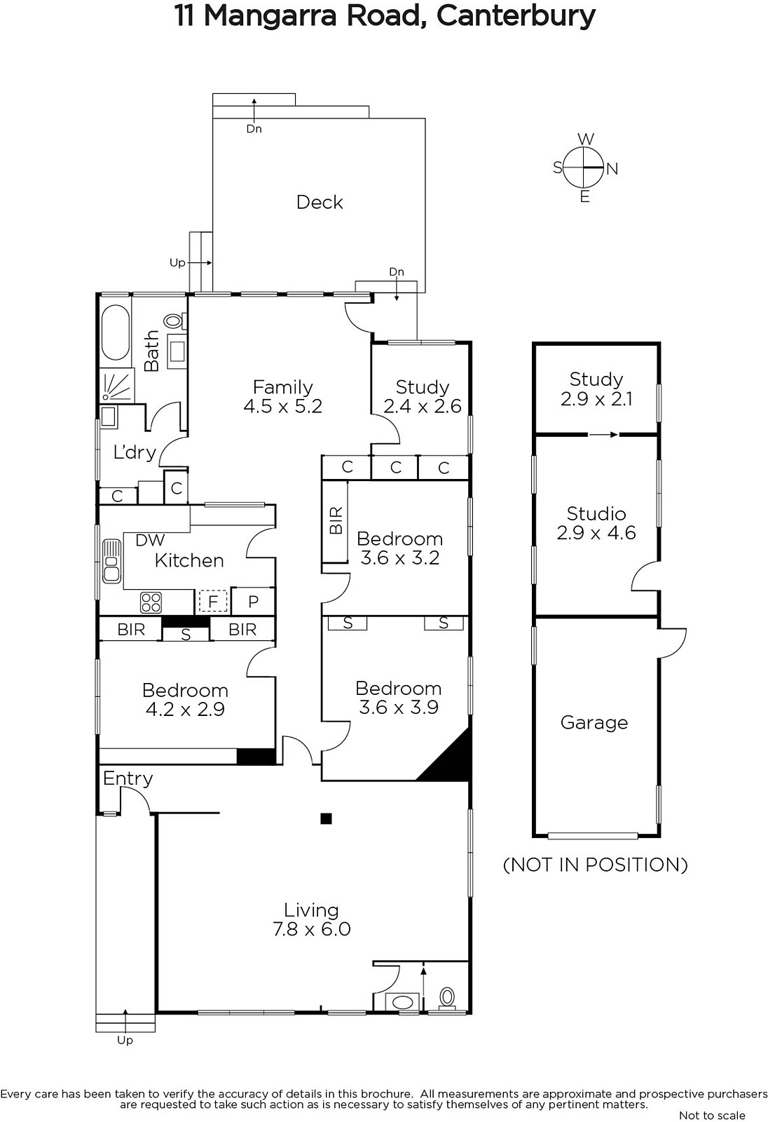
Introduced by a leafy front garden framed by Silver Birch trees this gracious Edwardian family residence c1908 offers exceptional potential to renovate and extend, taking it to the next level; or superb site to build a new luxury family residence in this prized location (STCA). The carefully maintained interior is highlighted by soft neutral tones and an inviting ambience featuring period attributes including ceiling roses and leadlight windows plus a Baltic Pine hallway opening to a formal sitting and dining room combined, powder room and three bedrooms plus a fully renovated bathroom, laundry and central kitchen with stainless steel appliances overlooking a generous family living and dining room with adjacent study. All flowing to a deck, tranquil rear garden with external retreat and second study.
Other features of this fine home include ducted heating, air conditioner & gasFP (sitting room), R/C air conditioner (family room), rain water tanks (5,000ltrs), garage/storage and tandem off-street parking.
Land size: 650sqm (approx.)
Enquire about this property
Request Appraisal
Welcome to Canterbury 3126
Median House Price
$3,753,750
3 Bedrooms
$2,800,000
4 Bedrooms
$3,757,500
5 Bedrooms+
$4,340,000
Canterbury, 10 kilometres east of Melbourne's CBD, radiates exclusivity and prestige. This esteemed suburb is renowned for the picturesque Canterbury Road, lined with majestic trees, and the charming Maling Road shopping village.













