Sold11 Gordon Avenue, Kew
Double Fronted Victorian in Prime Kew Position
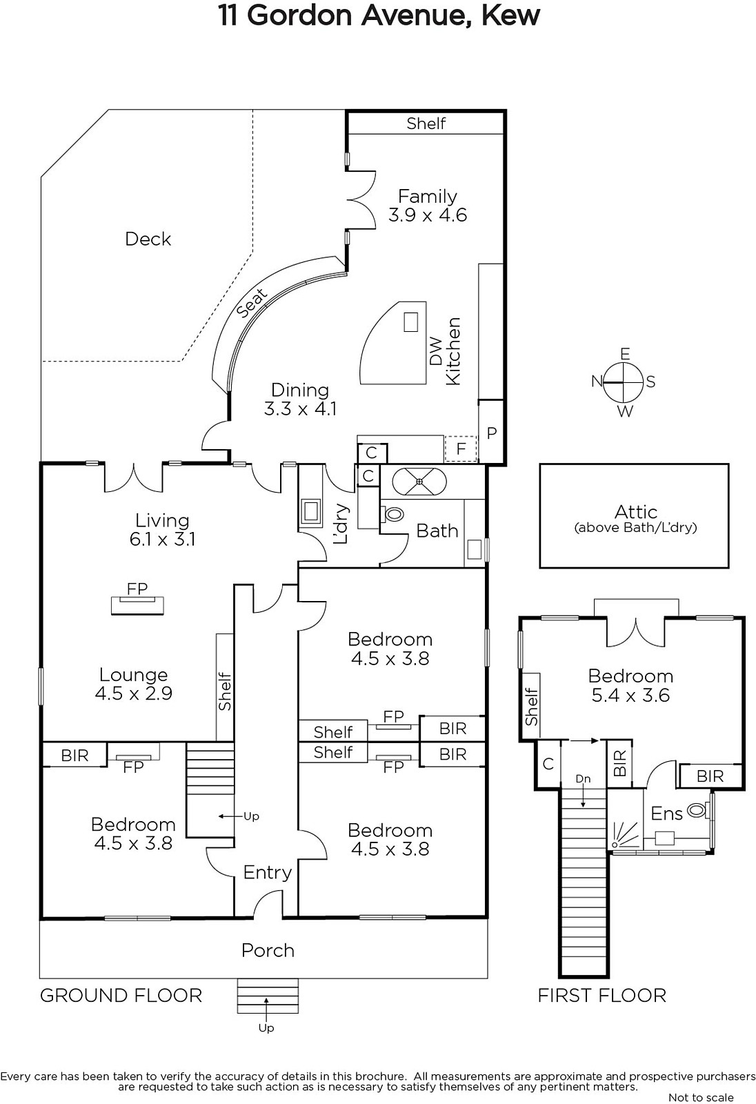
Step inside and enjoy the ambience of this lovely double-fronted Victorian family residence; with just completed renovations delivering a stylish new living environment within a traditional period layout. Enviably tucked away in a quiet period streetscape unspoilt by new developments in the heart of the Kew private school precinct. Perfect for accessing sought-after Kew amenities including Kew Junction shopping with the popular Leo's Fine Foods, Toscanos, cafes and restaurants. Plus Glenferrie Road or the Victoria Gardens Complex, numerous transport options and the Eastern Freeway for travel to the CBD.
Attractively introduced by an eye-catching white façade trimmed with charcoal grey and an iron lacework verandah the interior over two levels features the spacious proportions typical of its era with an arched hallway, preserved ceiling roses and cornices, three downstairs bedrooms with BIRs; plus an upstairs main bedroom with WIR and sparkling ensuite, a family bathroom and laundry. Complemented by the flexibility of formal living and dining rooms together with an informal family room with sleek granite and Euro appointed kitchen (WIP) - all flowing to a northern deck and private garden providing tranquil indoor/outdoor entertaining options in leafy surroundings. Other features include OFPs, newly installed R6 ducted heating, R/C air conditioners, R6 insulation, led lights througout, large attic storage, side lane access and off-street parking. Land size: 415sqm approx.
In Conjunction with Steven James at Find The Best Agent
Enquire about this property
Request Appraisal
Welcome to Kew 3101
Median House Price
$2,666,500
2 Bedrooms
$1,575,000
3 Bedrooms
$2,173,500
4 Bedrooms
$2,926,250
5 Bedrooms+
$4,580,000
Kew, positioned just 5 kilometres east of Melbourne's CBD, is renowned for its sophistication and elegance.










