Sold11 Byron Street, Brighton
Excellent Potential close to Bay Street
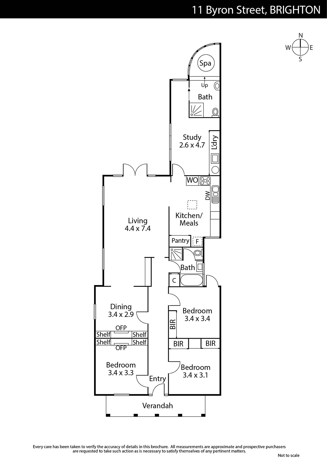
Perfectly located and ready to update, this three bedroom Victorian home on 518 square metres approx awaits a bright future. It's just around the corner from Bay Street's shops and cafes, there's the bonus of right of way access from Warriston Street, and North Brighton station is blocks away. You can take inspiration from the beautifully renovated homes that line this idyllic street, and plan on maximizing the deep north-facing land and central address STCA. Extended for spacious living, there's a sun-filled family room opening onto the generous garden, a meals area and kitchen, playroom/study, and two bathrooms. From the rose-covered lychgate entrance and picket fence to the classic features, this has wonderful street appeal. An exciting opportunity to enhance a Brighton original and be a stroll away from schools and parkland.
Conjunctional Agent: OMP Real Estate Josephine O'Gorman 0418 148 655.
Enquire about this property
Request Appraisal
Welcome to Brighton 3186
Median House Price
$3,278,333
2 Bedrooms
$2,066,833
3 Bedrooms
$2,509,166
4 Bedrooms
$3,611,666
5 Bedrooms+
$4,742,934
Brighton, located just 11 kilometres southeast of Melbourne CBD, is synonymous with luxury and elegance in the real estate market.









