Sold11 Belvedere, Kew
Private Inspections by Appointment Only | Please Contact Agent to Arrange a time
This split-level family residence enjoys an elevated position with terraced gardens sloping down to Yarravale Road; delivering seclusion, privacy and leafy valley outlooks in the highly regarded Studley Park precinct, one of Melbourne's finest residential areas. In largely original condition the home offers a wonderful opportunity to capitalise on its leafy and tranquil living environment, renovate and possibly reconfigure the interior in keeping with today's style and lifestyle expectations (STCA).
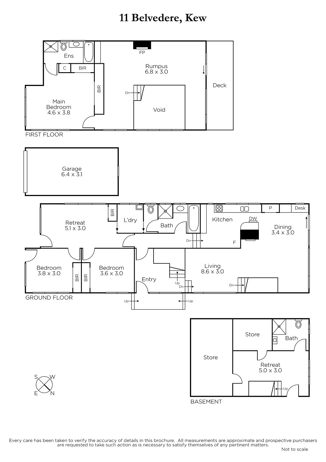
The current accommodation over three levels features floor-to-ceiling windows delivering an abundance of natural light to the interior and includes two balconies overlooking the valley and a solar-heated pool. With four zoned bedrooms, upper-level main with a living area and ensuite, three positioned on the middle-level with a family bathroom, laundry, living and a modern kitchen/dining area. Leading to a lower-level bathroom/laundry and possible third living room or retreat opening to the garden and pool. Other features include period-style bathrooms and kitchen, stainless steel dishwasher, ducted heating, a gas and open fireplace, under house storage and a single garage.
This opportunity is further enhanced by its close proximity to Kew Junction shopping, including the popular Leo's Fine Foods and Toscanos, cafes and restaurants or Victoria Gardens Complex; with easy access to many of Melbourne's finest schools and the CBD via public transport or the Eastern Freeway; plus the Yarra Parklands for recreation - all the amenities the area is renowned for.
An update from Marshall White on COVID-19: Auctions and Inspections
In accordance with the most recent Federal Government guidelines, public auctions will be cancelled with immediate effect. All of Marshall White's current listings will now be offered via an Expression of Interest or Private Sale campaign. Please contact our agents to make your interest in any of our listed properties is known to us.
Private Inspections are available strictly by appointment only. Please contact our listing agent to make an appointment.
These times are unprecedented, and we are mindful of the community's health concerns and the stresses associated with all property dealings at this time.
Marshall White remains open for business - we have adapted our processes to ensure that we can continue to safely meet your needs. Our commitment to our clients remains unchanged and we continue to deliver outstanding results in helping people achieve their property goals.
We wish you and those close to you the best of health and please contact our office should you have any questions.
Private Inspection Guidelines
To ensure the safety of our clients, the community and our team at Marshall White, we respectfully remind all of our clients of the following arrangements.
We will be asking attendees to:
- Contact the Agent managing the property to book a private inspection.
- Not enter the property if:
- You have returned from overseas in the past two weeks
- You are unwell or have a fever
- You have come into contact with someone experiencing flu-like symptoms
- As per the health guidelines, please maintain a distance of 1.5 metres from others and avoid physical contact, including shaking hands.
- Apply hand sanitiser, which will be available for your use.
- Refrain from touching household items, such as door handles, cupboards and tapware.
- Registration will be required to enter.
Enquire about this property
Request Appraisal
Welcome to Kew 3101
Median House Price
$2,635,000
2 Bedrooms
$1,740,000
3 Bedrooms
$2,128,750
4 Bedrooms
$2,826,750
5 Bedrooms+
$4,380,000
Kew, positioned just 5 kilometres east of Melbourne's CBD, is renowned for its sophistication and elegance.















