Sold11 Arbour Drive, Kew
Exceptional Style. Exceptional Location
Mature trees, landscaped gardens and quiet mews-style streets form the beautiful backdrop to this stylish split-level contemporary family residence. Enviably situated close to the highly regarded Studley Park precinct - only minutes from Kew Junction cafes, restaurants and shopping including Leo's Fine Foods and Toscano's; with easy access to the Yarra Boulevard parklands, numerous prestigious schools, public transport and access to the CBD, Yarra Valley or the Mornington Peninsula via the Eastern Freeway.
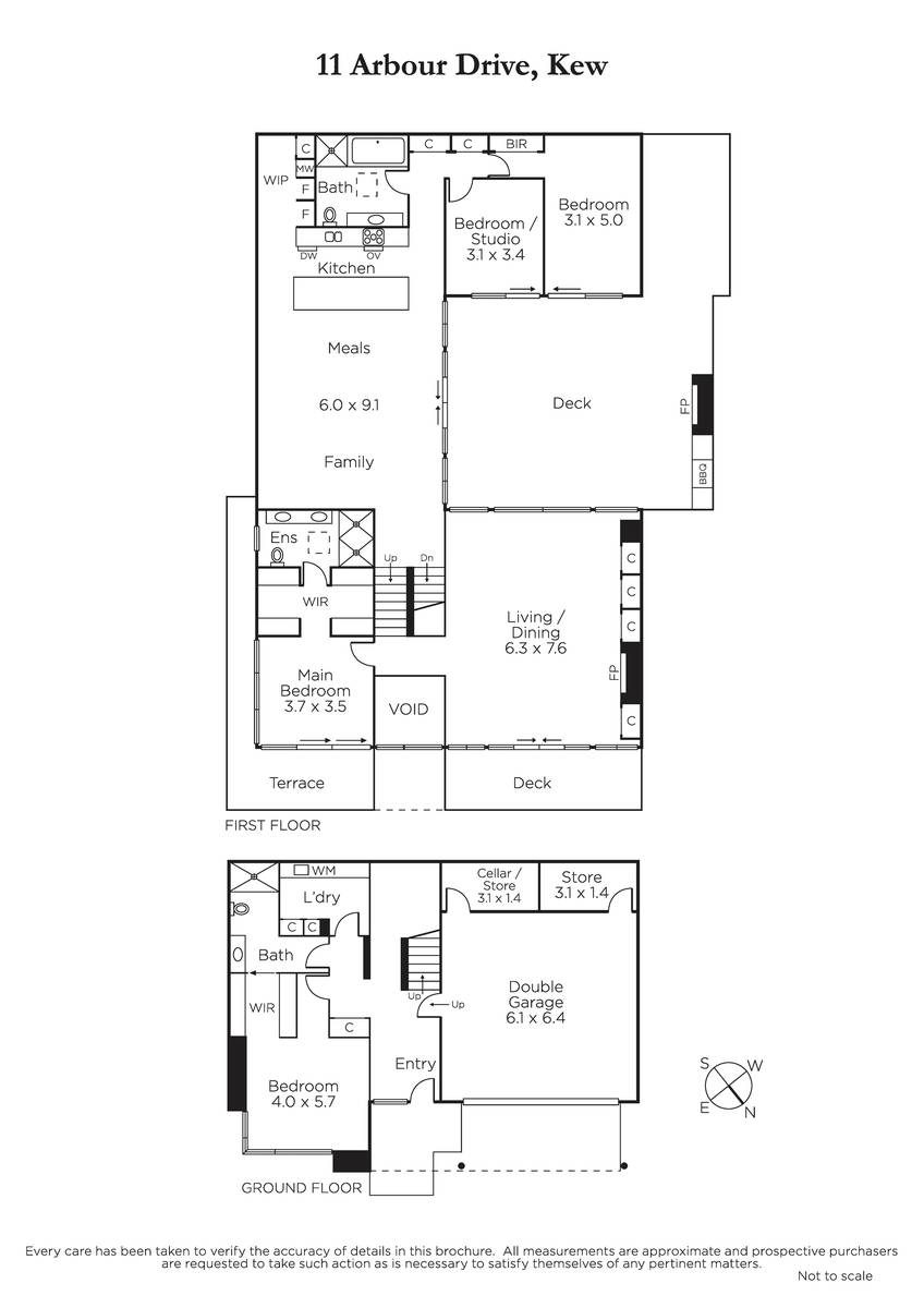
The interior offers a striking combination of space and light delivering a relaxed low maintenance lifestyle with its flowing living and entertaining areas featuring wide oak floorboards and high ceilings with strategically positioned windows and full-height glass in the living areas surrounding a covered north-facing central deck with OFP and gas mains barbeque - creating ideal indoor/outdoor dining and entertaining options for enjoying with family and friends. The ground floor features a tiled foyer leading to a bedroom with BIRs and dual access bathroom and laundry. Level one has an expansive living area including a superbly appointed kitchen with CaesarStone benchtops, island bench and a full suite of prestige Miele appliances and a WIP leading to the deck and two double bedrooms with BIRs, or one plus a study and a family bathroom; plus an upper-level living room main bedroom with a WIR, dual shower ensuite and two balconies with tree-top views to the northern ranges and Dandenongs.
Other features of this stunning home include video intercom, ducted heating & cooling, gasFP (upper living), fully-tiled bathrooms, excellent storage including storeroom/cellar and remote double garage with direct internal access.
Enquire about this property
Request Appraisal
Welcome to Kew 3101
Median House Price
$2,666,500
2 Bedrooms
$1,575,000
3 Bedrooms
$2,173,500
4 Bedrooms
$2,926,250
5 Bedrooms+
$4,580,000
Kew, positioned just 5 kilometres east of Melbourne's CBD, is renowned for its sophistication and elegance.




















